Blagoja Parovica, Četvoroiposoban stan na prodaju, 83m2, 125.000€

Šifra oglasa: BeogradskiStanovi-261631
Beograd, Čukarica, Banovo brdo - Blagoja Parovica
Prodaja stana Banovo Brdo

125.000 €

1.506,02 €/m2

Klikni da pozoveš ili pošalješ poruku
Kontakt telefon
Klikni na dugme da vidis broj
0600197032

Kliknite i ostavite kontakt kako biste saznali kako ovaj stan možete kupiti uz pomoć stambenog kredita:
Detalji oglasa:
Cena:
Kvadratura:
Tip objekta:
Stanje objekta:
Struktura:
Sprat:
Način grejanja:
Uknjiženost:
Dodatno:
125.000 €
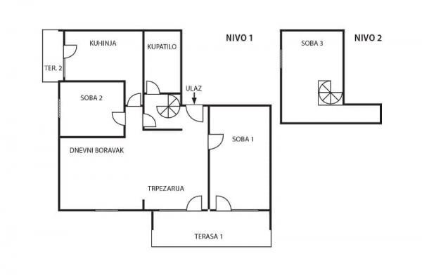
83 m2
Stan
Izvorno
4.5
5/6
Etažno
Uknjiženo
Terasa, parking
Oglas ažuriran: 10.03.2025 (13:49)
Oglas proveren: 29.10.2025 (18:29)

Opis oglasa:
Šifra oglasa:
BeogradskiStanovi-261631
Specijalna ponuda, retko u prodaji stan u srcu Košutnjaka sa cetiri spavaće sobe. U stambenom objekatu visokostandadne staro gradnje se nalazi ova impozantna nepokretnost dvostrano orjentsana, Mikrolokacija je odlično saobraćajno povezana sa ostalim delovima grada što olakšava mreža novih gradskih saobraćajnica kao i Most na Adi ka Novom Beogradu. U neposrednoj blizini objekta nalaze se Shopping Centar, škola, vrtići, pijaca, marketi, crkva, veliki broj restorana i kafića . Objekat je sagrađen u neposrednoj blizini Košutnjaka i Ade Ciganlije, dva najposećenija sportsko-rekreativna centra, a u blizini je i Hipodrom za ljubitelje konjičkog sporta. Stan je uknjizen i legalizovan, 83 kvadrata. Za vise informacija 0600197032.
Adresa Blagoja Parovica
Klikni da pozoveš ili pošalješ poruku
Kontakt telefon
Klikni na dugme da vidis broj
0600197032
Prijavi grešku u oglasu
Zakaži gledanje stana
Zakaži gledanje stana
Pitaj oglašivača
Selektuj šta te interesuje:
Pošalji pitanje

Podeli stan sa prijateljima
Kopiraj link

Kontaktiraj oglašivača
MakaBeba - profilna slika
MakaBeba
Klikni na *** za prikaz broja telefona
0600197032
Slični oglasi:

Najtraženije lokacije: