Milana Rakića, Četvorosoban stan na prodaju, 103m2, 250.000€

Šifra oglasa: BeogradskiStanovi-2382
Beograd, Zvezdara, Olimp - Milana Rakića
4,0 Zvezdara , Olimp , perfektan duplex , garaza , uknjizen ID#BeogradskiStanovi-2382

250.000 €

2.427,18 €/m2

Klikni da pozoveš ili pošalješ poruku
Kontakt telefon
011 412 83 80

Kliknite i ostavite kontakt kako biste saznali kako ovaj stan možete kupiti uz pomoć stambenog kredita:
Detalji oglasa:
Cena:
Kvadratura:
Tip objekta:
Stanje objekta:
Struktura:
Sprat:
Način grejanja:
Uknjiženost:
250.000 €
103 m2
Stan
Renovirano
4.0
2/3
Etažno
Nije uknjiženo
Oglas ažuriran: 01.04.2025 (20:41)
Oglas proveren: 29.11.2025 (20:25)

Opis oglasa:
Šifra oglasa:
BeogradskiStanovi-2382
Kontakt: 011 412 83 80
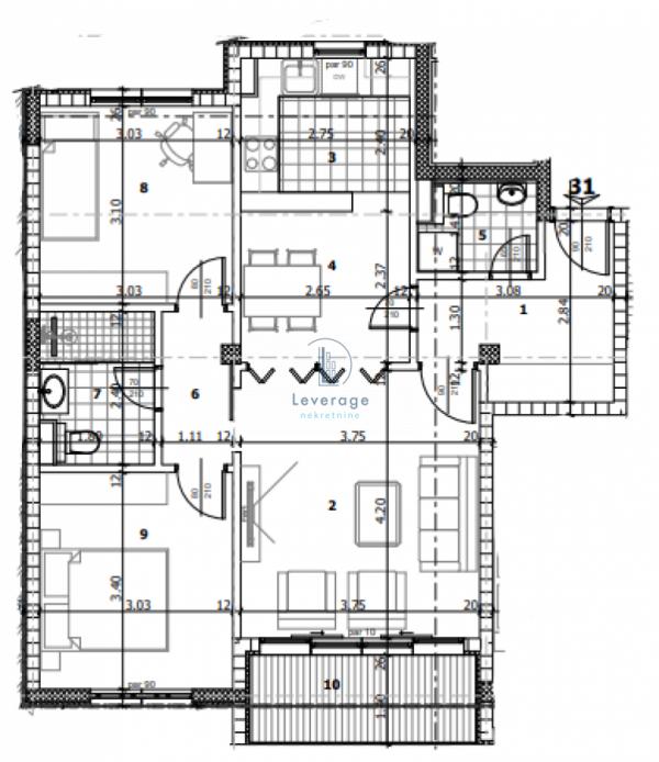
3,5 Zvezdara , neposredna blizina SC Olimp i Bulevara kralja Aleksandra , Milana Rakica , 103m2 merena kvadratura , 87m2 uknjizena kvadratura , II +III , lift , eg / struja , odlican stan - duplex u novoj zgradi , gradnja 2023. godine , dvostrano orijentisan ( zapad - jug ) , svetao , Pvc stolarija , Hrastov parket Marazzi , sanitarije Minoti , Diplon , Laufen , Geberit , Italijanska keramika , krovni Velux prozori , lift Kone ....mogucnost kupovine garaznog mesta po ceni 20 400e (17000e+Pdv ) .

Cena stana sa Pdv-om ( mogucnost povraćaja Pdv-a za kupce prvog stana ) .

Struktura -

1. nivo – dnevna soba sa kuhinjom i trpezarijom , spavaća soba , kupatilo , terasa.

2. nivo - 2 spavaće sobe , kupatilo . Agencijska provizija 2%
Kontakt: 011 412 83 80
Adresa Milana Rakića
Klikni da pozoveš ili pošalješ poruku
Kontakt telefon
011 412 83 80
Prijavi grešku u oglasu
Zakaži gledanje stana
Zakaži gledanje stana
Pitaj oglašivača
Selektuj šta te interesuje:
Pošalji pitanje

Podeli stan sa prijateljima
Kopiraj link

Kontaktiraj oglašivača


Slični oglasi: