Jednoiposoban stan na prodaju, 45m2, 124.878€

Šifra oglasa: BeogradskiStanovi-22374
Beograd, Zvezdara, Kaluđerica
Zemun, Sutjeska - Pazovački put, 45m2

124.878 €

2.775,07 €/m2

Klikni da pozoveš ili pošalješ poruku
Kontakt telefon
Klikni na dugme da vidis broj
0653039439

Kliknite i ostavite kontakt kako biste saznali kako ovaj stan možete kupiti uz pomoć stambenog kredita:
Detalji oglasa:
Cena:
Kvadratura:
Tip objekta:
Stanje objekta:
Struktura:
Sprat:
Način grejanja:
Uknjiženost:
Dodatno:
124.878 €
45 m2
Stan
Izvorno
1.5
1/4
-
Nije uknjiženo
Garaža, parking, lift
Oglas ažuriran: 22.05.2025 (15:13)
Oglas proveren: 04.11.2025 (04:25)

Opis oglasa:
Šifra oglasa:
BeogradskiStanovi-22374
Zemun, Sutjeska - Pazovački put

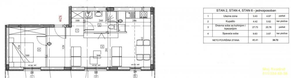
1.5, 45m2, podno grejanje/struja, inverter klima, lift, 1/4, interfon, parking, garaža

Na Pazovačkom putu gradi se zgrada sa tri sprata + povučeni sprat. Zgrada ima i garažu.

Stan je funkcionalan i sastoji se od velikog dnevnog boravka sa kuhinjom, spavaće sobe, hodnika i kupatila.

Stanovi su vrlo funkcionalni, grade se sa vrlo kvalitetnim materijalima - izolacija stiropor 10, španska keramika, PVC stolarija sa troslojnim staklom. Grejanje je podno (na struju) i svaki stan ima svoj kotao, kao i inverter klimu.

Predviđeno useljenje je maj 2026. godine, a predviđena izgrađenost kada će biti moguća kupovina preko stambenog kredita je oktobar 2025. godine.

U cenu stana je uračunat PDV.

Građevinska dozvola.

Agencijska provizija 2%

Agent: Mirela Perović 060/72-77-557 (licenca br.2566)
Klikni da pozoveš ili pošalješ poruku
Kontakt telefon
Klikni na dugme da vidis broj
0653039439
Prijavi grešku u oglasu
Zakaži gledanje stana
Zakaži gledanje stana
Pitaj oglašivača
Selektuj šta te interesuje:
Pošalji pitanje

Podeli stan sa prijateljima
Kopiraj link

Kontaktiraj oglašivača
Kvadrat nekretnine - profilna slika
Klikni na *** za prikaz broja telefona
0653039439

Klikni na *** za prikaz broja telefona
0113348871

Klikni na *** za prikaz broja telefona
0113348836

Klikni na *** za prikaz broja telefona
0116305219

Broj u registru: 167


Slični oglasi: