Oglas BeogradskiStanovi-4576

Četvorosoban stan na prodaju, 73m2, 204.400€

Šifra oglasa: BeogradskiStanovi-4576
Beograd, Zvezdara
Bulevar kod Kluza, četvorosoban stan 73m2 + pdv ID#BeogradskiStanovi-4576

204.400 €

2.800,00 €/m2

Klikni da pozoveš ili pošalješ poruku
Kontakt telefon
011 412 54 36

Kliknite i ostavite kontakt kako biste saznali kako ovaj stan možete kupiti uz pomoć stambenog kredita:
Detalji oglasa:
Cena:
Kvadratura:
Tip objekta:
Stanje objekta:
Struktura:
Sprat:
Način grejanja:
Uknjiženost:
Dodatno:
204.400 €
73 m2
Stan
Lux
4.0
3/4
Etažno
Uknjiženo
Parking, lift
Oglas ažuriran: 27.08.2025 (16:34)
Oglas proveren: 28.10.2025 (12:30)

Opis oglasa:
Šifra oglasa:
BeogradskiStanovi-4576
Kontakt: 011 412 54 36
U ponudi imamo četvorosoban stan u izgradnji u blizini stare okretnice tramvaja, Kluza
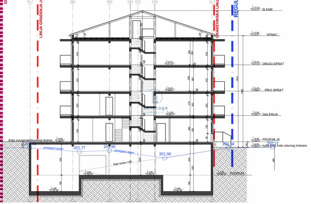
Stan je površine 73,22m2, nalazi se na trećem spratu stambene zgrade od četiri sprata sa liftom
Po strukturi se sastoji od hodnika, dnevnog boravka sa trpezarijom, kuhinje, tri spavaće sobe, kupatila, gostinskog toaleta i terase
Prozori su drvo-aluminijum sa troslojnim staklom, Tarkett parket, španska keramika prve klase
Spoljašnji zidovi toplotno su izolovani tvrdo presovanom kamenom vunom
Grejanje u stanu je etažno na struju
Mogućnost kupovine i garažnog mesta čija je cena 20000 sa pdv-om
Video nadzor, interfon
Lokacija prostora je izuzetna, niz prodavnica, kafića, restorana
Povezanost sa ostatkom grada je izuzetna, veći broj različitih linija gradskog prevoza
Rok završetka radova decembar 2025. godine
MOGUĆA KUPOVINA NA KREDIT
Cena je bez PDV-a
Mogućnost povraćaja pdv-a
Agencijska provizija 2% od dogovorene kupoprodajne cene uključuje istraživanje neophodno za pronalaženje adekvatne nekretnine, pomoć u pregovorima, provera dokumentacije, apliciranje za stambeni kredit, izrada ugovora/predugovora o kupoprodaji, organizacija primopredaje, zapisnik o primopredaji, pomoć pri prijavi poreza na apsolutna prava i eventualno oslobođenje od istog, promena korisnika struje, infostana, vode, gasa... i sve ostalo što podrazumeva Zakon o posredovanju u prometu i zakupu nepokretnosti.
Kontakt telefon 011 412 54 36
Za više informacija posetite naš sajt.


We offer a four-room apartment under construction near the old tram turn, Cluj
The apartment has an area of 73.22 m2, it is located on the third floor of a four-story residential building with an elevator
The structure consists of a hallway, a living room with a dining room, a kitchen, three bedrooms, a bathroom, a guest toilet and a terrace.
The windows are wood-aluminum with three-layer glass, Tarkett parquet, first-class ceramics from Spain
The external walls are thermally insulated with hard-pressed stone wool
The heating in the apartment is electric
The possibility of buying a garage space
Video surveillance, intercom
The location of the space is exceptional, a number of shops, cafes, restaurants
The connection with the rest of the city is exceptional, a large number of different lines of public transport
The deadline for completion of the works is December 2025
POSSIBLE PURCHASE ON CREDIT
The price is without VAT
Possibility of VAT refund

Agency commission 2% of the agreed purchase price includes research necessary to find an adequate real estate, help in negotiations, checking documents, applying for a home loan, drawing up contracts/pre-contracts on purchase and sale, organization of handover, minutes of handover, help with the declaration of tax on absolute rights and eventual exemption from the same, change of user of electricity, infostation, water, gas... and everything else that is implied by the Law on Mediation in Traffic and Leasing of Real Estate.
Contact phone 011 412 54 36


Предлагаем четырёхкомнатную квартиру в строящемся здании рядом со старой трамвайной остановкой в Клуже.

Площадь квартиры составляет 73,22 м², она расположена на третьем этаже четырёхэтажного жилого дома с лифтом.

В квартире есть прихожая, гостиная со столовой, кухня, три спальни, ванная комната, гостевой туалет и терраса. Окна – дерево-алюминиевые с трёхслойным стеклопакетом, паркет Tarkett, первоклассная керамика из Испании.
Внешние стены утеплены каменной ватой высокой плотности.
Отопление – электрическое.
Возможность покупки гаражного места.
Видеонаблюдение, домофон.
Удобное расположение рядом магазины, кафе, рестораны.
Отличное транспортное сообщение с другими частями города большое количество различных линий общественного транспорта.
Срок завершения работ – декабрь 2025 года.
ВОЗМОЖНА ПОКУПКА В КРЕДИТ.
Цена указана без НДС.
Возможен возврат НДС.

Комиссионное вознаграждение агентства 2% от согласованной цены покупки включает поиск подходящего объекта недвижимости, помощь в переговорах, проверку документов, подачу заявления на ипотечный кредит, составление договоров/предварительных договоров купли-продажи, организацию передачи, протокол передачи, помощь в подаче декларации по налогу на абсолютные права и возможное освобождение от него, смену абонента электроэнергии, информационного центра, воды, газа... и всё остальное. иное, что подразумевается Законом о посредничестве в торговле и аренде недвижимости.
Контактные телефоны
Kontakt: 011 412 54 36
Klikni da pozoveš ili pošalješ poruku
Kontakt telefon
011 412 54 36
Prijavi grešku u oglasu
Zakaži gledanje stana
Zakaži gledanje stana
Pitaj oglašivača
Selektuj šta te interesuje:
Pošalji pitanje

Podeli stan sa prijateljima
Kopiraj link

Kontaktiraj oglašivača


Slični oglasi: