Radete Stankovića, Trosoban stan na prodaju, 69m2, 115.000€

Šifra oglasa: BeogradskiStanovi-12259
Beograd, Zvezdara, Mali Mokri Lug - Radete Stankovića
Zvezdara, odličan 3.0 stan, novogradnja, parking mesto ID#BeogradskiStanovi-12259

115.000 €

1.666,67 €/m2

Klikni da pozoveš ili pošalješ poruku
Kontakt telefon
011 412 83 75

Detalji oglasa:
Cena:
Kvadratura:
Tip objekta:
Stanje objekta:
Struktura:
Sprat:
Način grejanja:
Uknjiženost:
Dodatno:
115.000 €
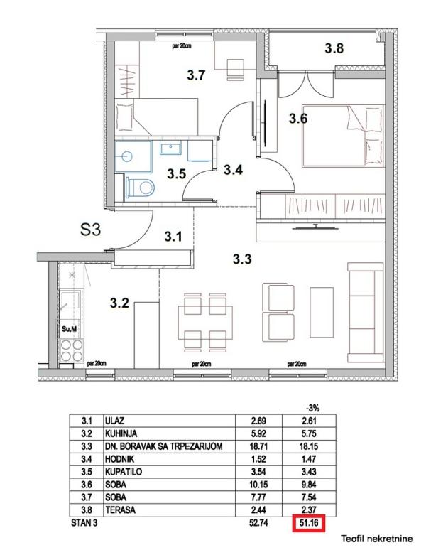
69 m2
Stan
Izvorno
3.0
1/2
Električno
Nije uknjiženo
Parking
Oglas ažuriran: 16.10.2025 (18:25)
Oglas proveren: 21.10.2025 (00:25)

Opis oglasa:
Šifra oglasa:
BeogradskiStanovi-12259
Kontakt: 011 412 83 75
Stan se sastoji od velike dnevne sobe koja je open space sa kuhinjom, 2 spavaće sobe, lođe i kupatila. Na lođu se izlazi iz dnevne i jedne spavaće sobe. Jako lep, prostran i funkcionalan stan.
Na 100m od stana prolazi 9 linija gradskog prevoza, a na 200m se nalazi Lidl i sam centar Kaluđerice..
Ispred zgrade se nalazi parking mesto koje je uključeno u cenu stana.
Samo keš kupci.

Agencijska provizija 2%
Agent: Agent: Jelena Momirov, broj licence 5463
“Art nekretnine“ d.o.o. Beograd
Reg. br.339

MJ06 .
Kontakt: 011 412 83 75
Adresa Radete Stankovića
Klikni da pozoveš ili pošalješ poruku
Kontakt telefon
011 412 83 75
Prijavi grešku u oglasu
Zakaži gledanje stana
Zakaži gledanje stana
Pitaj oglašivača
Selektuj šta te interesuje:
Pošalji pitanje

Podeli stan sa prijateljima
Kopiraj link

Kontaktiraj oglašivača


Slični oglasi: