Jednoiposoban stan na prodaju, 57m2, 123.000€

Šifra oglasa: BeogradskiStanovi-22726
Beograd, Zvezdara, Olimp
Zvezdara, Olimp - Matice srpske, 57m2

123.000 €

2.157,89 €/m2

Klikni da pozoveš ili pošalješ poruku
Kontakt telefon
Klikni na dugme da vidis broj
0653039439

Kliknite i ostavite kontakt kako biste saznali kako ovaj stan možete kupiti uz pomoć stambenog kredita:
Detalji oglasa:
Cena:
Kvadratura:
Tip objekta:
Stanje objekta:
Struktura:
Sprat:
Način grejanja:
Uknjiženost:
Dodatno:
123.000 €
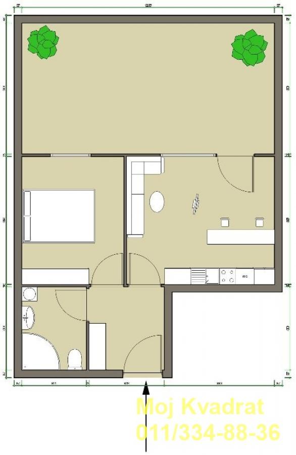
57 m2
Stan
Izvorno
1.5
vp/5
Centralno
Uknjiženo
Terasa, lift
Oglas ažuriran: 27.09.2025 (15:20)
Oglas proveren: 01.10.2025 (20:25)

Opis oglasa:
Šifra oglasa:
BeogradskiStanovi-22726
Zvezdara, Olimp - Matice srpske

1.5, 57m2 (terasa 22m2), VPR/5, CG, lift, telefon, interfon

U ponudi odlično pozicioniran, prazan jednoiposoban stan, orijentisan ka dvorištu.

Pogodan je za invalide i starije osobe, jer zgrada poseduje rampu. U zgradi je prodavnica, a ispred same zgrade stanica gradskog prevoza.

Pogodan je kako za život, tako i za izdavanje, bilo kao stan ili kao poslovni prostor.

Samo za keš kupce! Useljiv odmah!

Uknjižen na 35m2 korisne površine.

Agencijska provizija 2%

Agent: Igor Bambić 063/20-99-33 (licenca br.403)
Klikni da pozoveš ili pošalješ poruku
Kontakt telefon
Klikni na dugme da vidis broj
0653039439
Prijavi grešku u oglasu
Zakaži gledanje stana
Zakaži gledanje stana
Pitaj oglašivača
Selektuj šta te interesuje:
Pošalji pitanje

Podeli stan sa prijateljima
Kopiraj link

Kontaktiraj oglašivača
Kvadrat nekretnine - profilna slika
Klikni na *** za prikaz broja telefona
0653039439

Klikni na *** za prikaz broja telefona
0113348871

Klikni na *** za prikaz broja telefona
0113348836

Klikni na *** za prikaz broja telefona
0116305219

Broj u registru: 167


Slični oglasi: