Nevesinjska, Trosoban stan na prodaju, 69m2, 440.000€

Šifra oglasa: BeogradskiStanovi-12445
Beograd, Vračar, Kalenić pijaca - Nevesinjska
Novogradnja u srcu Vračara ID#BeogradskiStanovi-12445

440.000 €

6.376,81 €/m2

Klikni da pozoveš ili pošalješ poruku
Kontakt telefon
011 412 83 75

Detalji oglasa:
Cena:
Kvadratura:
Tip objekta:
Stanje objekta:
Struktura:
Sprat:
Način grejanja:
Uknjiženost:
Dodatno:
440.000 €
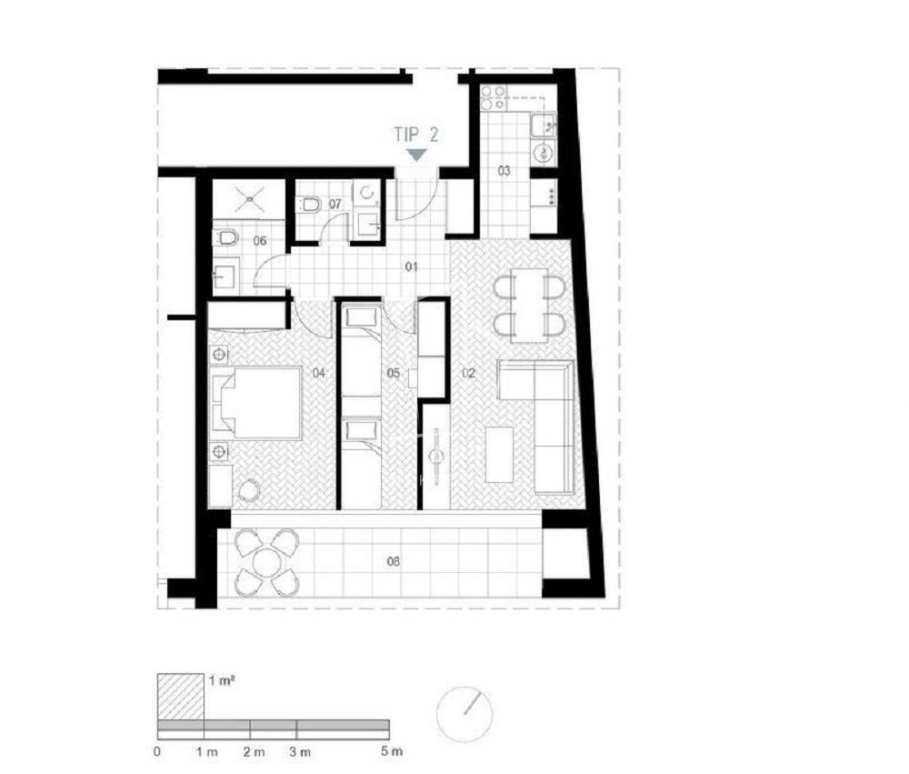
69 m2
Stan
Izvorno
3.0
3/6
-
Nije uknjiženo
Garaža, lift
Oglas ažuriran: 04.10.2025 (14:01)
Oglas proveren: 19.04.2026 (16:25)

Opis oglasa:
Šifra oglasa:
BeogradskiStanovi-12445
Kontakt: 011 412 83 75
Luksuzno dizajniran, trosoban stan u srcu Vračara, na korak od Hrama Svetog Save i Kalenić pijace.
Zgrada se gradi po najvišim standardima, vodeći računa o energetskoj efikasnosti. Sistem grejanja i hlađenja je putem toplotnih pumpi. Smart Home tehnologija pruža mogućnost kontrole različitih sistema i uređaja putem aplikacije.
Zgrada će posedovati lobby sa recepcijom 24/7, podzemnu garažu i sopstveno dvorište.
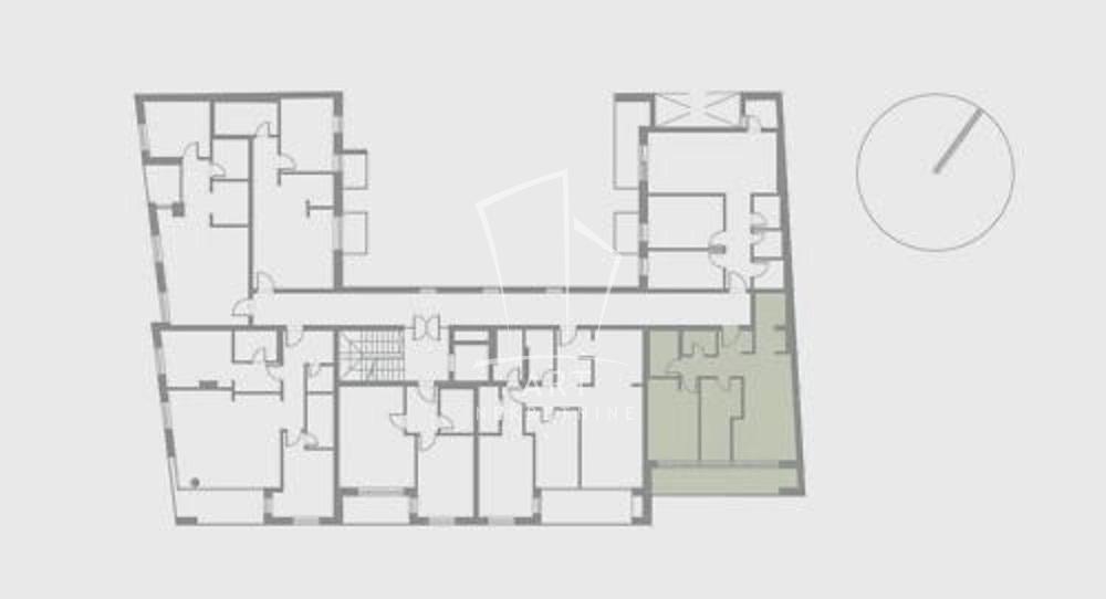
Prostorije stana: predsoblje, dnevna soba sa trpezarijom i kuhinjom, 2 spavaće sobe, kupatilo, toalet i
terasa.
Postoji mogućnost kupovine garažnog mesta.
Nalazi se na izuzetnoj lokaciji, u neposrednoj blizini svih potrebnih sadržaja za udoban život.
Planirani završetak radova je u aprilu 2026.godine.

Agencijska provizija 2%
Agent: Nevena Janjić br. licence 5479
"Art nekretnine" d.o.o. Beograd
Reg. br. 339.
Kontakt: 011 412 83 75
Adresa Nevesinjska
Klikni da pozoveš ili pošalješ poruku
Kontakt telefon
011 412 83 75
Prijavi grešku u oglasu
Zakaži gledanje stana
Zakaži gledanje stana
Pitaj oglašivača
Selektuj šta te interesuje:
Pošalji pitanje

Podeli stan sa prijateljima
Kopiraj link

Kontaktiraj oglašivača


Slični oglasi: