Trosoban stan na prodaju, 65m2, 205.000€

Šifra oglasa: BeogradskiStanovi-4013
Beograd, Zvezdara, Olimp
Zvezdara, Olimp, Novogradnja, 65m2

205.000 €

3.153,85 €/m2

Klikni da pozoveš ili pošalješ poruku
Kontakt telefon
011 412 71 88

Kliknite i ostavite kontakt kako biste saznali kako ovaj stan možete kupiti uz pomoć stambenog kredita:
Detalji oglasa:
Cena:
Kvadratura:
Tip objekta:
Stanje objekta:
Struktura:
Sprat:
Način grejanja:
Uknjiženost:
Dodatno:
205.000 €
65 m2
Stan
Izvorno
3.0
pr/3
Etažno
Uknjiženo
Terasa, garaža, lift
Oglas ažuriran: 20.10.2025 (18:18)
Oglas proveren: 20.03.2026 (12:25)

Opis oglasa:
Šifra oglasa:
BeogradskiStanovi-4013
Kontakt: 011 412 71 88
Na samo nekoliko koraka od Sportskog centra Olimp, u mirnoj ulici, gradi se izuzetno kvalitetan stambeni objekat u kojem se koriste najkvalitetniji materijali dostupni na tržištu.

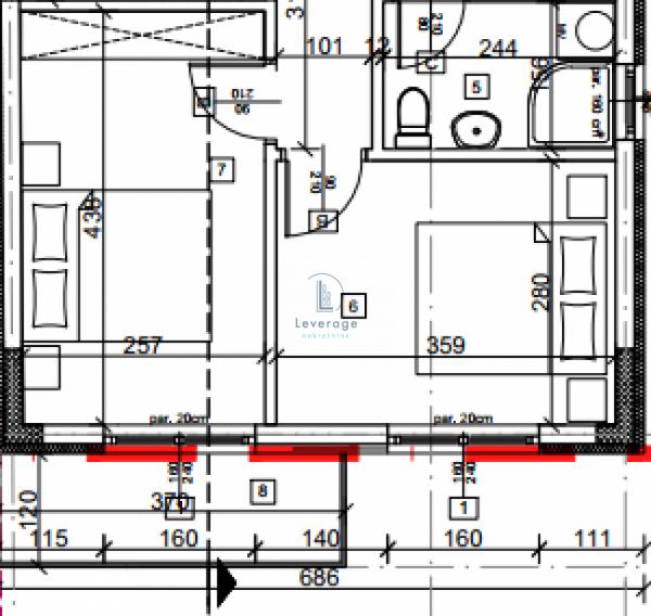
U ponudi je funkcionalan dupleks stan koji se sastoji od:

Donjeg nivoa: dnevna soba sa kuhinjom i trpezarijom, predsoblje, kupatilo i stepenište;

Gornjeg nivoa: galerijski prostor, dve spavaće sobe, kupatilo i terasa.

Postoji mogućnost kupovine garažnog mesta u okviru objekta.

Cena stana je navedena bez PDV-a.

Agencijska provizija iznosi 2% od kupoprodajne cene.

Kontaktirajte nas za više informacija.
Kontakt: 011 412 71 88
Klikni da pozoveš ili pošalješ poruku
Kontakt telefon
011 412 71 88
Prijavi grešku u oglasu
Zakaži gledanje stana
Zakaži gledanje stana
Pitaj oglašivača
Selektuj šta te interesuje:
Pošalji pitanje

Podeli stan sa prijateljima
Kopiraj link

Kontaktiraj oglašivača


Slični oglasi: