Oglas BeogradskiStanovi-4140

Internacionalnih brigada, Četvoroiposoban stan na prodaju, 224m2, 923.709€

Šifra oglasa: BeogradskiStanovi-4140
Beograd, Vračar - Internacionalnih brigada
LUX, Vračar, kod Karađorđevog parka, 223,3m2 duplex + pdv ID#BeogradskiStanovi-4140

923.709 €

4.123,70 €/m2

Klikni da pozoveš ili pošalješ poruku
Kontakt telefon
011 412 54 36

Kliknite i ostavite kontakt kako biste saznali kako ovaj stan možete kupiti uz pomoć stambenog kredita:
Detalji oglasa:
Cena:
Kvadratura:
Tip objekta:
Stanje objekta:
Struktura:
Sprat:
Način grejanja:
Uknjiženost:
Dodatno:
923.709 €
224 m2
Stan
Izvorno
4.5
3
-
Uknjiženo
Parking
Oglas ažuriran: 28.10.2025 (12:18)
Oglas proveren: 02.12.2025 (12:25)

Opis oglasa:
Šifra oglasa:
BeogradskiStanovi-4140
Kontakt: 011 412 54 36
U prilici smo da Vam ponudimo izuzetan penthouse stan u jednom od najlepših delova Vračara, na Neimaru.
Neposredna blizina Karađorđevog parka i hrama Svetog Save, velika prednost stana.
Stan se nalazi na trećem spratu luksuzne i intimne trospratne zgrade.
Izuzetno dobro pozicioniran u mirnoj ulici.
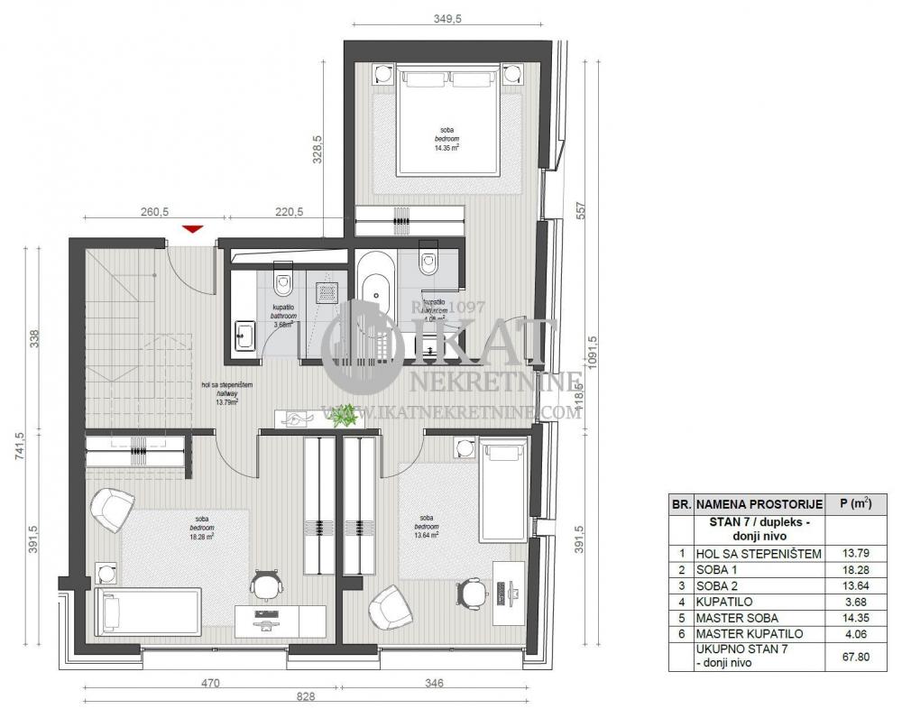
Moderno projektovan stan površine 223,3m2, po strukturi duplex.
Na donjem nivou nalazi se hol sa stepeništem, dve spavaće sobe, kupatilo, master soba i master kupatilo.
Na gornjem nivou se nalazi prostrana dnevna zona sa kuhinjom i trpezarijom, toalet, master soba sa garderoberom, master kupatilo i prostrana terasa.
Visok kvalitet upotrebljenih materija i završne obrade čine ovaj stan idealnim za urban i udoban porodični život.
Svaka stambena jedinica podržava SMART HOME tehnologiju, omogućavajući stanarima da intuitivno kontrolišu različite aspekte svog doma.
Dodatna pogodnost uz svaki stan uključuje i ostavu, pružajući dodatni prostor za skladištenje i organizaciju.
Oprema je pažljivo odabrana od najuglednijih proizvođača.
Troslojni parket Lamar, vrhunska granitna keramika Porcelanosa prve klase, Hansgrohe slavine, Wicona aluminijumska stolarija, Hunter Douglas žaluzine.
Ulazna vrata Bosal i elegantni hromirani radijatori za peškire samo su neki od luksuznih detalja.
Dobra povezanost sa ostatkom grada putem više linija gradskog prevoza.
Neposredna blizina niza elitnih kafića, restorana, prodavnica, škola, vrtića, fakulteta.
Istaknuta cena je bez PDV-a.
Za kupce prvog stana, mogućnost oslobađanja plaćanja PDV-a.
Uknjiženo.
Agencijska provizija 2% od dogovorene kupoprodajne cene uključuje istraživanje neophodno za pronalaženje adekvatne nekretnine, pomoć u pregovorima, provera dokumentacije, apliciranje za stambeni kredit, izrada ugovora/predugovora o kupoprodaji, organizacija primopredaje, zapisnik o primopredaji, pomoć pri prijavi poreza na apsolutna prava i eventualno oslobođenje od istog, promena korisnika struje, infostana, vode, gasa... i sve ostalo što podrazumeva Zakon o posredovanju u prometu i zakupu nepokretnosti.
Kontakt telefon 011 412 54 36
Za više informacija posetite naš sajt.

We have the opportunity to offer you an exceptional penthouse apartment in one of the most beautiful parts of Vračar, on Neimar.
The close proximity of Karađorđe Park and the Temple of St. Sava, a great advantage of the apartment.
The apartment is located on the third floor of a luxurious and intimate three-story building.
Extremely well positioned in a quiet street.
Modernly designed apartment of 223.3m2, duplex structure.
On the lower level there is a hall with a staircase, two bedrooms, a bathroom, a master bedroom and a master bathroom.
On the upper level there is a spacious living area with a kitchen and dining room, a toilet, a master bedroom with a wardrobe, a master bathroom and a spacious terrace.
The high quality of the used materials and finishes make this apartment ideal for an urban and comfortable family life.
Each residential unit supports SMART HOME technology, allowing residents to intuitively control various aspects of their home.
An added amenity with each apartment includes a walk-in closet, providing additional storage and organization space.
The equipment is carefully selected from the most reputable manufacturers.
Three-layer Lamar parquet, first-class Porcelanos granite ceramics, Hansgrohe faucets, Wicona aluminum carpentry, Hunter Douglas blinds.
Bosal front doors and elegant chrome towel radiators are just some of the luxurious details.
Good connection with the rest of the city via several lines of public transport.
Close proximity to a number of elite cafes, restaurants, shops, schools, kindergartens, colleges.
The displayed price is without VAT.
For buyers of the first apartment, the possibility of exemption from paying VAT.
Registered.
The agency commission of 2% of the agreed purchase price includes research necessary to find an adequate property, help in negotiations, checking documents, applying for a home loan, drafting a contract/preliminary purchase contract, organization of handover, minutes of handover, help in declaring tax on absolute rights and possible exemption from it, changing the user of electricity, infostation, water, gas... and everything else that the Law on Intermediation in Traffic and Leasing of Real Estate entails.
Contact phone 011 412 54 36

Мы рады предложить Вам исключительную квартиру-пентхаус в одном из самых красивых районов Врачара, на Неймаре.
Большим преимуществом квартиры является ее непосредственная близость к парку Карагеоргия и храму Святого Саввы.
Квартира расположена на третьем этаже роскошного и уютного трехэтажного здания.
Очень удачное расположение на тихой улице.
Современная квартира площадью 223,3 м2, дуплексная структура.
На нижнем уровне находятся холл с лестницей, две спальни, ванная комната, хозяйская спальня и хозяйская ванная комната.
На верхнем уровне расположена просторная гостиная с кухней и столовой, туалет, главная спальня с гардеробной, главная ванная комната и просторная терраса.
Высокое качество использованных материалов и отделочных материалов делают эту квартиру идеальной для городской и комфортной семейной жизни.
Каждая жилая единица поддерживает технологию УМНЫЙ ДОМ, позволяющую жильцам интуитивно управлять различными аспектами своего дома.
Дополнительным удобством в каждой квартире является кладовая, обеспечивающая дополнительное пространство для хранения и организации вещей.
Оборудование тщательно отбирается у самых авторитетных производителей.
Трехслойный паркет Lamar, высококачественная гранитная керамика Porcelanosa, смесители Hansgrohe, алюминиевые столярные изделия Wicona, жалюзи Hunter Douglas.
Входные двери Bosal и элегантные хромированные полотенцесушители — это лишь некоторые из роскошных деталей.
Хорошее сообщение с остальной частью города посредством нескольких линий общественного транспорта.
В непосредственной близости находится множество элитных кафе, ресторанов, магазинов, школ, детских садов и университетов.
Указанная цена не включает НДС.
Для покупателей квартир впервые предусмотрена возможность освобождения от уплаты НДС.
Зарегистрирован.
В комиссию агентства в размере 2% от согласованной цены покупки входит исследование, необходимое для поиска подходящего объекта недвижимости, помощь в переговорах, проверка документации, подача заявления на жилищный кредит, составление договора/предварительного договора купли-продажи, организация передачи, ведение протокола передачи, помощь в подаче налога на абсолютные права и возможное освобождение от него, смена пользователя электроэнергии, инфостена, воды, газа... и все остальное, что включено в Закон о посредничестве при купле-продаже и аренде недвижимости.
Контактные номера 011 412 54 36
Kontakt: 011 412 54 36
Adresa Internacionalnih brigada
Klikni da pozoveš ili pošalješ poruku
Kontakt telefon
011 412 54 36
Prijavi grešku u oglasu
Zakaži gledanje stana
Zakaži gledanje stana
Pitaj oglašivača
Selektuj šta te interesuje:
Pošalji pitanje

Podeli stan sa prijateljima
Kopiraj link

Kontaktiraj oglašivača


Slični oglasi: