Trosoban stan na prodaju, 66m2, 228.700€

Šifra oglasa: BeogradskiStanovi-22868
Beograd, Zvezdara, Olimp
Trosoban, 66m2, Olimp Beograd, sa terasom, ima lift

228.700 €

3.465,15 €/m2

Klikni da pozoveš ili pošalješ poruku
Kontakt telefon
Klikni na dugme da vidis broj
0653039439

Kliknite i ostavite kontakt kako biste saznali kako ovaj stan možete kupiti uz pomoć stambenog kredita:
Detalji oglasa:
Cena:
Kvadratura:
Tip objekta:
Stanje objekta:
Struktura:
Sprat:
Način grejanja:
Uknjiženost:
Dodatno:
228.700 €
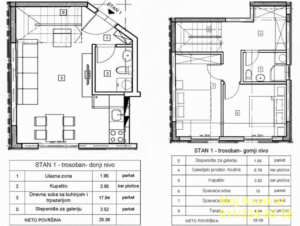
66 m2
Stan
Izvorno
3.0
pr
Etažno
Nije uknjiženo
Terasa, lift
Oglas ažuriran: 28.11.2025 (16:30)
Oglas proveren: 30.04.2026 (04:25)

Opis oglasa:
Šifra oglasa:
BeogradskiStanovi-22868
Zvezdara - Olimp

3.0, 66m2 (terasa 4.5m2), PR+galerija, EG/struja, klima, lift

Na izuzetnoj lokaciji u blizini Sportskog centra Olimp u modernoj novogradnji prodaje se trosoban stan u dva nivoa, prizemlje + galerija.

Zgrada je u završnoj fazi kvalitetne gradnje, sa odličnom termo i zvučnom izolacijom. Troslojno staklo, šestokomorna PVC stolarija, podizači roletni na struju, energetski efikasno etažno grejanje na struju, inverter klima uređaj (uključen u cenu).

Mogućnost kupovine garažnog mesta po ceni od 25.000 € sa PDV-om.

Stan se nalazi u mirnom, lepo povezanom delu grada, sa brzom komunikacijom ka svim važnim gradskim sadržajima. Škole, vrtići, prodavnice i rekreativne zone nalaze se u neposrednoj blizini.

Idealno za porodično stanovanje ili kao investicija.

U cenu stana je uraćinat PDV.

Građevinska dozvola.

Agencijska provizija 2%
Klikni da pozoveš ili pošalješ poruku
Kontakt telefon
Klikni na dugme da vidis broj
0653039439
Prijavi grešku u oglasu
Zakaži gledanje stana
Zakaži gledanje stana
Pitaj oglašivača
Selektuj šta te interesuje:
Pošalji pitanje

Podeli stan sa prijateljima
Kopiraj link

Kontaktiraj oglašivača
Vaš Kvadrat DOO - profilna slika
Klikni na *** za prikaz broja telefona
0653039439

Klikni na *** za prikaz broja telefona
0113348871

Klikni na *** za prikaz broja telefona
0113348836

Klikni na *** za prikaz broja telefona
0116305219

Broj u registru: 167


Slični oglasi: