Jednoiposoban stan na prodaju, 35m2, 67.956€

Šifra oglasa: BeogradskiStanovi-3698
Beograd, Zvezdara, Kaluđerica
Kvalitetna novogradnja, Kaluđerica, pretprodaja, 35.21 m2

67.956 €

1.941,60 €/m2

Klikni da pozoveš ili pošalješ poruku
Kontakt telefon
011 412 71 88

Kliknite i ostavite kontakt kako biste saznali kako ovaj stan možete kupiti uz pomoć stambenog kredita:
Detalji oglasa:
Cena:
Kvadratura:
Tip objekta:
Stanje objekta:
Struktura:
Sprat:
Način grejanja:
Uknjiženost:
Dodatno:
67.956 €
35 m2
Stan
Izvorno
1.5
1/3
-
Nije uknjiženo
Terasa, garaža, lift
Oglas ažuriran: 28.11.2025 (16:00)
Oglas proveren: 02.12.2025 (00:30)

Opis oglasa:
Šifra oglasa:
BeogradskiStanovi-3698
Kontakt: 011 412 71 88
Prodajemo stan od renomiranog investitora na odličnoj lokaciji u samom centru Kaluđerice u paralelnoj ulici sa Smederevskim putem.

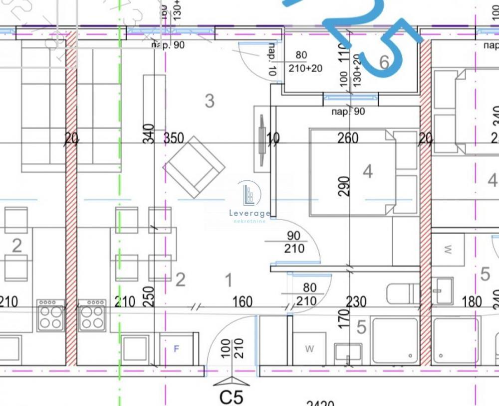
Stan je po strukturi jednoiposoban i koncipiran je tako da se sastoji od open space prostora - dnevni boravak sa kuhinjom i trpezarijom, spavaće sobe, kupatila i terase.

Lokacija je infrastrukturno odlično povezana, u neposrednoj blizini nalazi se Lidl, veliki broj kafića, škola, vrtića, kao i Dom zdravlja.

Idealan izbor za sve one koji traže dom u povučenijem delu grada, a opet blizu svih neophodnih sadržaja.

Investitor je kroz dosadašnje građevinske poduhvate izgradio i uselio preko deset stambeno - poslovnih objekata.
Postoji mogućnost kupovine spoljnog parking mesta ili garažnog mesta u zgradi,.

U ponudi su različite kvadrature i strukture na drugim spratovima.

Rok završetka gradnje planiran je za kraj 2027. godine.

Agencijska provizija iznosi 2% od kupoprodajne cene.

Kontaktirajte nas za više informacija.
Kontakt: 011 412 71 88
Klikni da pozoveš ili pošalješ poruku
Kontakt telefon
011 412 71 88
Prijavi grešku u oglasu
Zakaži gledanje stana
Zakaži gledanje stana
Pitaj oglašivača
Selektuj šta te interesuje:
Pošalji pitanje

Podeli stan sa prijateljima
Kopiraj link

Kontaktiraj oglašivača


Slični oglasi: