Mirijevski Venac, Trosoban stan na prodaju, 80m2, 225.000€

Šifra oglasa: BeogradskiStanovi-13286
Beograd, Zvezdara, Mirijevo - Mirijevski Venac
Mirijevo, Mirijevski venac, 80m2 ID#BeogradskiStanovi-13286

225.000 €

2.812,50 €/m2

Klikni da pozoveš ili pošalješ poruku
Kontakt telefon
011 412 83 75

Detalji oglasa:
Cena:
Kvadratura:
Tip objekta:
Stanje objekta:
Struktura:
Sprat:
Način grejanja:
Uknjiženost:
Dodatno:
225.000 €
80 m2
Stan
Renovirano
3.0
vp/10
Centralno
Uknjiženo
Lift
Oglas ažuriran: 20.01.2026 (17:25)
Oglas proveren: 20.03.2026 (12:25)

Opis oglasa:
Šifra oglasa:
BeogradskiStanovi-13286
Kontakt: 011 412 83 75
Uknjižen, 3.0, cg, vpr/10, lift.

Visina I sprata.
Nalazi se u blizini pošte i gleda na veliki park.
Održavano stanje.
Dvostrano orijentisan.

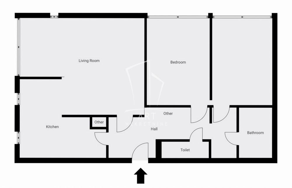
Prostorije: predsoblje, kuhinja, trpezarija, dnevna soba, 2 spavaće sobe, kupatilo, terasa (ubačena u grejnu površinu).

U blizini je OŠ "Despot Stefan Lazarević", vrtić, prodavnica, pošta, autobuska stanica.

Agencijska provizija 2%.
Agent: Vladimir Jovanović br. licence 1773
"Art nekretnine" d.o.o. Beograd.
Reg. br. 339
.
Kontakt: 011 412 83 75
Adresa Mirijevski Venac
Klikni da pozoveš ili pošalješ poruku
Kontakt telefon
011 412 83 75
Prijavi grešku u oglasu
Zakaži gledanje stana
Zakaži gledanje stana
Pitaj oglašivača
Selektuj šta te interesuje:
Pošalji pitanje

Podeli stan sa prijateljima
Kopiraj link

Kontaktiraj oglašivača


Slični oglasi: