Kralja Milana, Četvorosoban stan na prodaju, 153m2, 1.095.000€

Šifra oglasa: BeogradskiStanovi-13293
Beograd, Vračar, Slavija - Kralja Milana
Luksuzna novogradnja, King's Circle Residence ID#BeogradskiStanovi-13293

1.095.000 €

7.156,86 €/m2

Klikni da pozoveš ili pošalješ poruku
Kontakt telefon
011 412 83 75

Detalji oglasa:
Cena:
Kvadratura:
Tip objekta:
Stanje objekta:
Struktura:
Sprat:
Način grejanja:
Uknjiženost:
Dodatno:
1.095.000 €
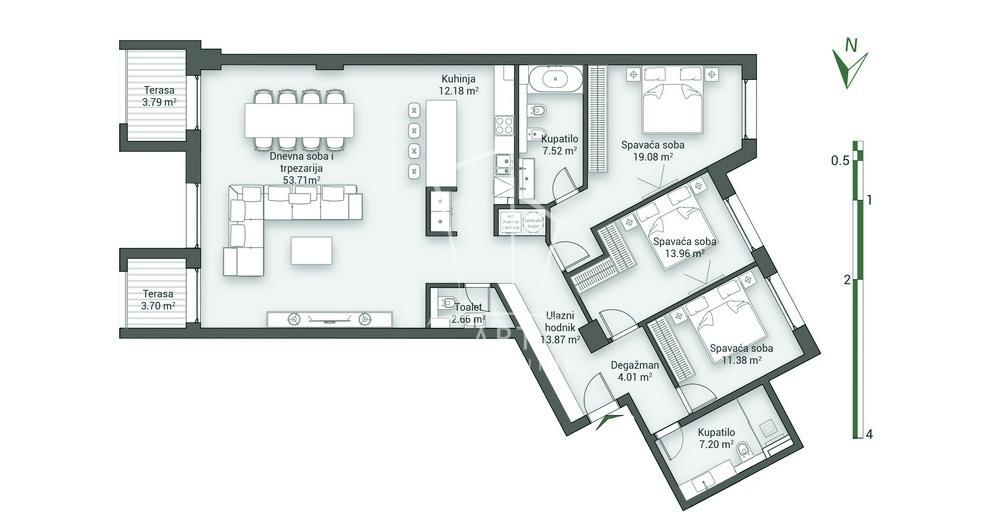
153 m2
Stan
Lux
4.0
4/9
Centralno
Nije uknjiženo
Garaža, lift
Oglas ažuriran: 15.12.2025 (13:20)
Oglas proveren: 31.01.2026 (16:25)

Opis oglasa:
Šifra oglasa:
BeogradskiStanovi-13293
Kontakt: 011 412 83 75
Na ekskluzivnoj lokaciji prodaje se luksuzni stan od 158 m² u kompleksu King’s Circle Residences na Slaviji, na 2. spratu reprezentativne zgrade, sa garažnim mestom od 14,9 m² u podzemnoj garaži po ceni od 55.000EUR.
Stan je urađen od vrhunskih materijala, po najvišim standardima gradnje u funkciji konfornog I modernig života u centru grada.

Oprema i karakteristike stana i zgrade:
- Sigurnosna ulazna vrata pune visine.
- Sobna vrata visine 240 cm (medijapan, štok od punog drveta), ukopane šarke
- Višeslojni mat-lak parket
- Keramika u mokrim čvorovima Ariostea.
- Sanitarije Geberit Duo Fix ugradni vodokotlići, Villeroy & Boch (V&B Subway, Subway 2.0, Finion, Architectura)
- tuš setovi Hansgrohe Ecostat S / Raindance, kabine od 8 mm „extra clear” kaljenog stakla.
- Spoljna stolarija Reynaers ili Schüco sa troslojnim staklom punjenim argonom, spoljnim roletnama/solomaticima skrivenim u fasadi i plisiranim komarnicima u okviru stolarije.
- Podno grejanje u celom stanu + fan coil uređaji, grejanje i hlađenje preko LG vazduh–voda toplotne pumpe.
- Putnički liftovi Schindler, Kone ili Otis, enterijer lifta po projektu arhitekte.
- centralni prekidač rasvete kod ulaza u stan, elektrogalanterija Legrand ili Vimar (Living Now), rasveta u hodnicima, interfoni, kamere i snimači u zajedničkim prostorijama, grejači u olucima, ozvučenje u hodnicima, antreu i liftovima, rasveta na fasadi.
- Spa centar u sklopu kompleksa: bazen, saune, tursko kupatilo, teretana sa opremom Technogym, muške i ženske svlačionice sa tuševima.

- Garaža sa numerisanim i ofarbanim parking-mestima, okrečenim zidovima i dodatno zaštićenim stubovima i ćoškovima.

Stan predstavlja idealan izbor za kupce koji traže maksimalni komfor, sigurnost i prestižnu lokaciju u srcu grada.

Agencijska provizija 2%
Agent: Nikola Franelić br. licence 505
“Art nekretnine“ d.o.o. Beograd. Reg. br.339

NF .
Kontakt: 011 412 83 75
Adresa Kralja Milana
Klikni da pozoveš ili pošalješ poruku
Kontakt telefon
011 412 83 75
Prijavi grešku u oglasu
Zakaži gledanje stana
Zakaži gledanje stana
Pitaj oglašivača
Selektuj šta te interesuje:
Pošalji pitanje

Podeli stan sa prijateljima
Kopiraj link

Kontaktiraj oglašivača