Oglas BeogradskiStanovi-17555

Generala Đoke Popovića, Dvosoban stan na prodaju, 44m2, 126.296€

Šifra oglasa: BeogradskiStanovi-17555
Beograd, Voždovac - Generala Đoke Popovića
Direktna prodaja-Luksuzna novogradnja ID#BeogradskiStanovi-17555

126.296 €

2.870,36 €/m2

Klikni da pozoveš ili pošalješ poruku
Kontakt telefon
011 412 83 75

Detalji oglasa:
Cena:
Kvadratura:
Tip objekta:
Stanje objekta:
Struktura:
Sprat:
Način grejanja:
Uknjiženost:
Dodatno:
126.296 €
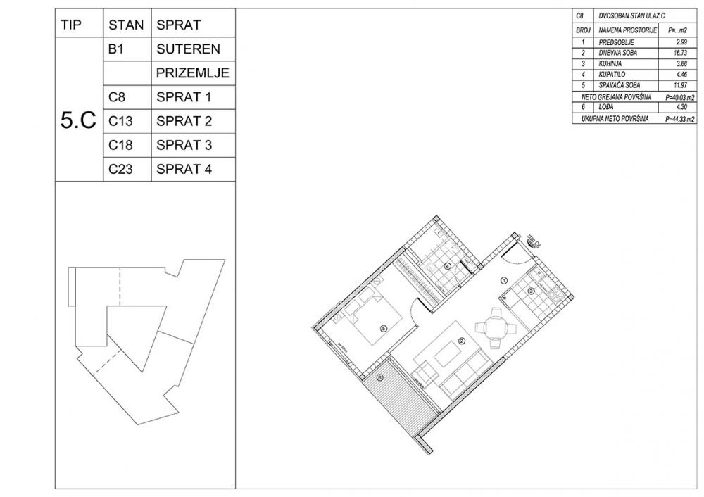
44 m2
Stan
Lux
2.0
1/4
Etažno
Nije uknjiženo
Garaža, parking, lift
Oglas ažuriran: 29.12.2025 (15:43)
Oglas proveren: 01.01.2026 (20:25)

Opis oglasa:
Šifra oglasa:
BeogradskiStanovi-17555
Kontakt: 011 412 83 75
Sigurna budućnost za vašu porodicu počinje u našem kompleksu.
Moderan stil gradnje, podređen porodičnom komforu. Na ušuškanoj lokaciji u kompleksu izuzetnog kvaliteta.
Pored kompleksa je parcela koja je namenjena izgradnji sportskih sadržaja i zelenila.
Uz objekat je predviđena izgradnja saobraćanice koja će taj deo grada povezivati sa autoputem.
Višespratna zgrada sa tri odvojena ulaza
Unutrašnje dvorište namenjeno odmoru, druženju i bezbednom dečjem boravku
Garaža i parking, obezbeđeni za sve stanare
Moderni materijali, kvalitetna izolacija i odlična funkcionalnost stanova.
Objekat se gradi klima blokom debljine 20cm, oblaže se kamenom vunom debljine 10cm sa završnim slojem fasade od fasadnog maltera.
Spoljna stolarija je aluminijumska sa termoprekidom, plastificirana spolja.
Sigurnosna vrata na svim stanovima tipa Bosal ili slično.
Keramika prve klase.
Višeslojni parket tipa tarket ili slično.
Etažno grejanje na struju, nezavisno za svaki stan.
CENA JE SA PDVom.
Rok završetka 04.2027.
Veliki izbor različitih struktura.
Izaberite svoj dom na vreme.
Povraćaj PDV-a za kupce prvog stana.
Bez plaćanja provizije za kupce.
Agent: Nikola Franelić br. licence 505
“Art nekretnine“ d.o.o. Beograd. Reg. br.339

0694250146 .
Kontakt: 011 412 83 75
Adresa Generala Đoke Popovića
Klikni da pozoveš ili pošalješ poruku
Kontakt telefon
011 412 83 75
Prijavi grešku u oglasu
Zakaži gledanje stana
Zakaži gledanje stana
Pitaj oglašivača
Selektuj šta te interesuje:
Pošalji pitanje

Podeli stan sa prijateljima
Kopiraj link

Kontaktiraj oglašivača


Slični oglasi: