Ozrenska, Dvoiposoban stan na prodaju, 75m2, 354.669€

Šifra oglasa: BeogradskiStanovi-12828
Beograd, Voždovac, Dušanovac - Ozrenska
Dušanovac, novogradnja, 2.5 stan ID#BeogradskiStanovi-12828

354.669 €

4.728,92 €/m2

Klikni da pozoveš ili pošalješ poruku
Kontakt telefon
011 412 83 75

Detalji oglasa:
Cena:
Kvadratura:
Tip objekta:
Stanje objekta:
Struktura:
Sprat:
Način grejanja:
Uknjiženost:
Dodatno:
354.669 €
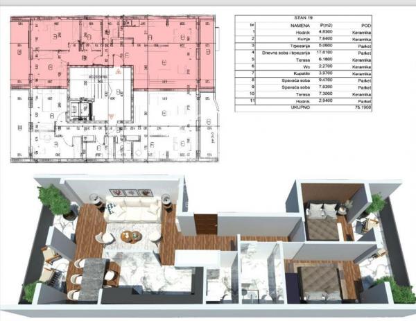
75 m2
Stan
Izvorno
2.5
8/8
Centralno
Nije uknjiženo
Garaža, lift
Oglas ažuriran: 10.01.2026 (13:31)
Oglas proveren: 22.01.2026 (20:25)

Opis oglasa:
Šifra oglasa:
BeogradskiStanovi-12828
Kontakt: 011 412 83 75
Nova zgrada u izgradnji na eksluzivnoj lokaciji nadomak auto puta i Dušanovca, pruža savršenu pristupačnost i povezanost i gradskim prevozom.
Zgrada je opremljena modernim uređajima i sistemima:
- energetski efikasna izolacija od kamene vune
- ALU stolarija
- sigurnosna Bosal vrata
- smart inverter klima u svakoj prostoriji
- CG grejanje sa kalolimetrom
- ventilacioni sistemi
- kompletne kupatilske sanitarije
- italijanska granitna keramika
- troslojni hrastov parket

Ekskluzivno pravo korišćenja krovne terase od 75m2.
Cena stana je sa uračunatim PDV-om.
Garažno mesto nije uračunato u cenu.
Obavezna kupovina garažnog mesta.
Mogućnost kupovine na kredit.
Rok završetka radova januar 2026. godine

Bez provizije za kupce

Agent: Mijat Mijatović, br. licence 6206
"Art nekretnine" d.o.o. Beograd, Reg. br. 339

MM .
Kontakt: 011 412 83 75
Adresa Ozrenska
Klikni da pozoveš ili pošalješ poruku
Kontakt telefon
011 412 83 75
Prijavi grešku u oglasu
Zakaži gledanje stana
Zakaži gledanje stana
Pitaj oglašivača
Selektuj šta te interesuje:
Pošalji pitanje

Podeli stan sa prijateljima
Kopiraj link

Kontaktiraj oglašivača


Slični oglasi: