Dvosoban stan na prodaju, 59m2, 217.000€

Šifra oglasa: BeogradskiStanovi-22980
Beograd, Palilula, Profesorska kolonija
Palilula, Profesorska kolonija - Ilirska, 59m2

217.000 €

3.677,97 €/m2

Klikni da pozoveš ili pošalješ poruku
Kontakt telefon
Klikni na dugme da vidis broj
0653039439

Kliknite i ostavite kontakt kako biste saznali kako ovaj stan možete kupiti uz pomoć stambenog kredita:
Detalji oglasa:
Cena:
Kvadratura:
Tip objekta:
Stanje objekta:
Struktura:
Sprat:
Način grejanja:
Uknjiženost:
217.000 €
59 m2
Stan
Renovirano
2.0
1/2
-
Uknjiženo
Oglas ažuriran: 20.01.2026 (18:58)
Oglas proveren: 01.02.2026 (16:25)

Opis oglasa:
Šifra oglasa:
BeogradskiStanovi-22980
Palilula, Profesorska kolinija - Ilirska

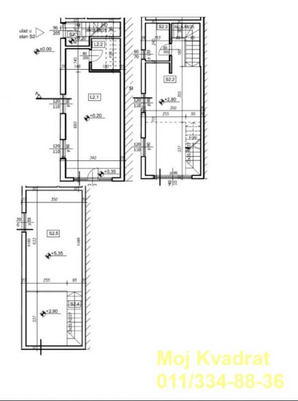
2.0, 59m2, 1+2/2, inverter klima, interfon

U ponudi moderno opremljen stan sa galerijom u zgradi sa malim brojem stanova.

Prostorije: ulazni deo, kupatilo, kuhinja, dnevno-trpezarijski deo, a na galeriji je spavaći prostor.

Grejanje u stanu je pomoću inverter klime, stan poseduje protočni bojler. Troškovi infostana su niski, a struja se plaća po potrošnji.

Prednost je blizina centra grada i dobra saobraćajna povezanost.

Prostor je izuzetan i kao investicija za izdavanje.

Postoji mogućnost kupovine manjeg stana pored površine 28m2 i spajanje u jednu celinu.

Uknjižen na 59m2 korisne površine.

Agencijska provizija 2%

Agent: Verica Simović 060/30-37-997 (licenca br. 2280)
Klikni da pozoveš ili pošalješ poruku
Kontakt telefon
Klikni na dugme da vidis broj
0653039439
Prijavi grešku u oglasu
Zakaži gledanje stana
Zakaži gledanje stana
Pitaj oglašivača
Selektuj šta te interesuje:
Pošalji pitanje

Podeli stan sa prijateljima
Kopiraj link

Kontaktiraj oglašivača
Vaš Kvadrat DOO - profilna slika
Klikni na *** za prikaz broja telefona
0653039439

Klikni na *** za prikaz broja telefona
0113348871

Klikni na *** za prikaz broja telefona
0113348836

Klikni na *** za prikaz broja telefona
0116305219

Broj u registru: 167


Slični oglasi: