Trosoban stan na prodaju, 60m2, 106.505€

Šifra oglasa: BeogradskiStanovi-1254
Beograd, Palilula, Krnjača
Na prodaju trosoban stan novogradnje u Krnjači

106.505 €

1.775,08 €/m2

Klikni da pozoveš ili pošalješ poruku
Kontakt telefon
011 412 83 76

Kliknite i ostavite kontakt kako biste saznali kako ovaj stan možete kupiti uz pomoć stambenog kredita:
Detalji oglasa:
Cena:
Kvadratura:
Tip objekta:
Stanje objekta:
Struktura:
Sprat:
Način grejanja:
Uknjiženost:
106.505 €
60 m2
Stan
Izvorno
3.0
pr/2
Etažno
Nije uknjiženo
Oglas ažuriran: 30.01.2026 (08:36)
Oglas proveren: 03.02.2026 (04:25)

Opis oglasa:
Šifra oglasa:
BeogradskiStanovi-1254
Kontakt: 011 412 83 76
ID BeogradskiStanovi-1254

Kontakt: Za vise informacija ili dogovor oko razgledanja, pozovite

Bez agencijske provizije - direktna cena od investitora.

Pravni nadzor - izrada i overa kupoprodajnog ugovora obezbeđena.

Stambeni objekat nalazi se u naselju Krnjača, opština Palilula, u planski uređenoj zoni namenjenoj porodičnom stanovanju. Objekat je slobodnostojeći, sa obezbeđenim pešačkim i kolskim pristupom. Projektovan je sa komfornom spratnom visinom i pažljivo organizovanim stambenim jedinicama. Poseban akcenat stavljen je na veliki procenat slobodnih i ozelenjenih površina, kao i na parkiranje u okviru parcele, uz očuvanje zelenila, što doprinosi kvalitetnom i mirnom ambijentu za stanovanje.

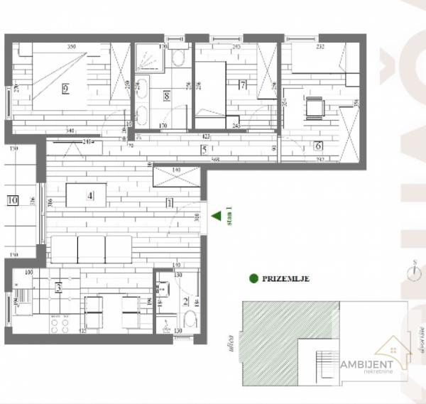
Funkcionalno projektovan trosoban stan koji obezbeđuje udoban i praktičan porodični život.

Ulazni deo vodi u hodnik iz kog se pristupa svim prostorijama, čime je postignuta dobra organizacija i privatnost.
Stan se sastoji od prostrane dnevne sobe, odvojene kuhinje, tri spavaće sobe, kupatila i dodatnog toaleta, što ga čini idealnim za porodice sa više članova.

Posebnu vrednost stanu daje terasa, koja omogućava dodatni prostor za odmor i boravak na otvorenom.

Raspored prostorija omogućava optimalno korišćenje prostora, uz jasno odvojenu dnevnu i noćnu zonu, pružajući komfor i funkcionalnost u svakodnevnom životu.

Cena je bez PDV-a - pravo na povraćaj PDV-a imaju kupci prvog stana.

Broj u registru posrednika: 1667.
Kontakt: 011 412 83 76
Klikni da pozoveš ili pošalješ poruku
Kontakt telefon
011 412 83 76
Prijavi grešku u oglasu
Zakaži gledanje stana
Zakaži gledanje stana
Pitaj oglašivača
Selektuj šta te interesuje:
Pošalji pitanje

Podeli stan sa prijateljima
Kopiraj link

Kontaktiraj oglašivača


Slični oglasi: