Oglas BeogradskiStanovi-11671

Mladena Mitrića, Jednoiposoban stan na prodaju, 43m2, 140.000€

Šifra oglasa: BeogradskiStanovi-11671
Beograd, Čukarica - Mladena Mitrića
Sa smart home pripremom, mereno 45m2 ID#BeogradskiStanovi-11671

140.000 €

3.255,81 €/m2

Klikni da pozoveš ili pošalješ poruku
Kontakt telefon
011 412 83 75

Detalji oglasa:
Cena:
Kvadratura:
Tip objekta:
Stanje objekta:
Struktura:
Sprat:
Način grejanja:
Uknjiženost:
Dodatno:
140.000 €
43 m2
Stan
Izvorno
1.5
6/7
Centralno
Uknjiženo
Lift
Oglas ažuriran: 04.02.2026 (19:00)
Oglas proveren: 05.02.2026 (00:25)

Opis oglasa:
Šifra oglasa:
BeogradskiStanovi-11671
Kontakt: 011 412 83 75
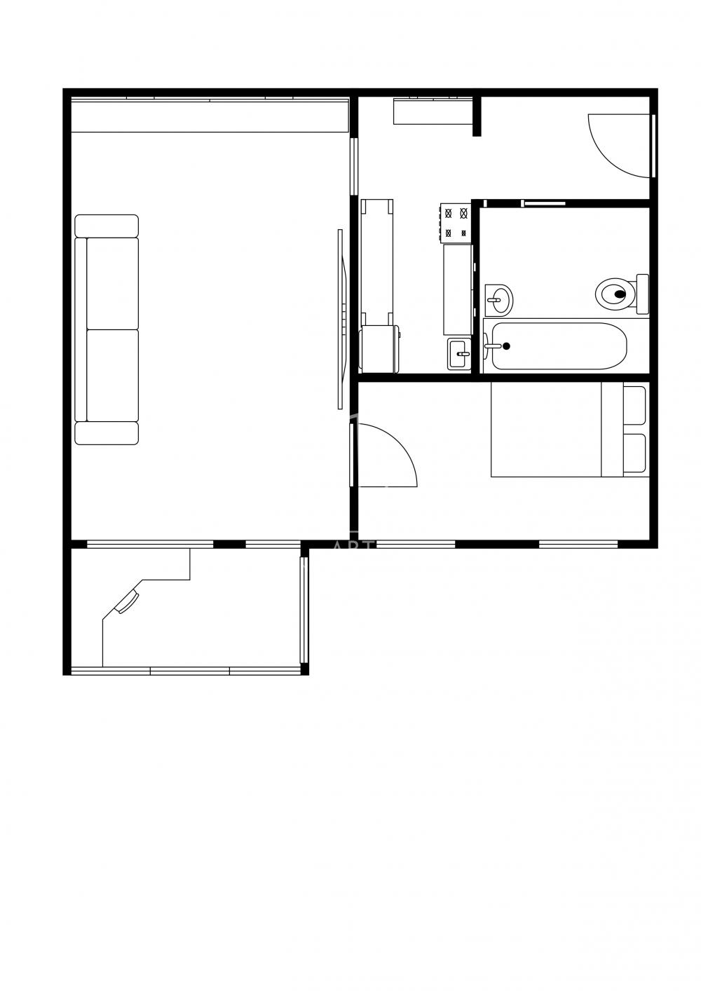
Uknjižen stan površine 40m² (mereno 45 m²), nalazi se na 6/8 spratu u zgradi sa liftom i podrumom.
Svetao, funkcionalan i pažljivo uređen prostor u mirnom delu Čukaričke padine – idealan izbor za one koji traže spoj komfora, modernog stila i praktičnosti.

Stan ima odličan raspored: dnevni boravak, trepezariju i kuhinju, spavaću sobu, kupatilo i zastakljenu terasu pretvorenu u radni kutak.
Prostor odiše lakoćom i toplinom, sa puno prirodnog svetla tokom dana.

? Pametan dom za 21. vek

Stan je potpuno pripremljen za smart home sistem – sprovedeno je stručno kabliranje do svake prostorije, što omogućava lako dodavanje, zamenu ili proširenje automatizacije.
Već je instaliran sistem koji omogućava upravljanje svetlom, grejanjem, hlađenjem, audio i video uređajima, putem daljinskog upravljača, aplikacije ili glasom.

Savršen izbor za sve koji žele udoban i pametno organizovan prostor spreman za useljenje odmah.


Agencijska provizija: 2%
Agent: Katarina Stefanović, br. licence 637
“Art nekretnine” d.o.o. Beograd, Reg. br. 339
.
Kontakt: 011 412 83 75
Adresa Mladena Mitrića
Klikni da pozoveš ili pošalješ poruku
Kontakt telefon
011 412 83 75
Prijavi grešku u oglasu
Zakaži gledanje stana
Zakaži gledanje stana
Pitaj oglašivača
Selektuj šta te interesuje:
Pošalji pitanje

Podeli stan sa prijateljima
Kopiraj link

Kontaktiraj oglašivača


Slični oglasi: