Oglas BeogradskiStanovi-13824

Vojvode Stepe, Trosoban stan na prodaju, 67m2, 195.509€

Šifra oglasa: BeogradskiStanovi-13824
Beograd, Voždovac - Vojvode Stepe
Trošarina, nvg, 67,07m2 ID#BeogradskiStanovi-13824

195.509 €

2.918,04 €/m2

Klikni da pozoveš ili pošalješ poruku
Kontakt telefon
011 412 83 75

Detalji oglasa:
Cena:
Kvadratura:
Tip objekta:
Stanje objekta:
Struktura:
Sprat:
Način grejanja:
Uknjiženost:
195.509 €
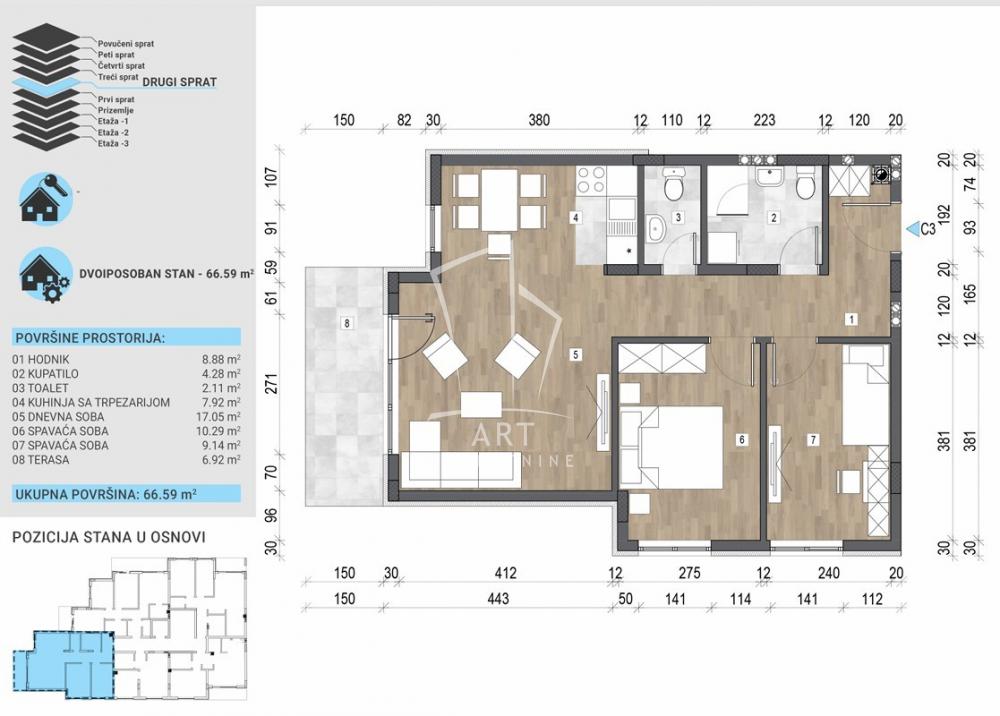
67 m2
Stan
Izvorno
3.0
2/6
Centralno
Nije uknjiženo
Oglas ažuriran: 06.02.2026 (18:58)
Oglas proveren: 12.02.2026 (00:25)

Opis oglasa:
Šifra oglasa:
BeogradskiStanovi-13824
Kontakt: 011 412 83 75
Prva faza izgradnje stambeno-poslovnog objekta na sjajnoj lokaciji u ulici Vojvode Stepe u blizini Velefarma.
Lokacija poseduje mnoge prednosti zato što je udaljenost od centra 7 km, mirno okruženje, mnogi fakulteti u blizini, odlična infrastruktura.
Objekat poseduje dva lifta. Ulaz sa vetrobranima.
Centralno grejanje sa ugrađenim kalorimetrima.
Nemačka stolarija prve klase. Keramika prve klase.
Tarkett višeslojni parket.
Garažna mesta na tri nivoa, dimenzije 2,5 x 5,0m2
Rok završetka izgradnje decembar 2026. Povrat PDV-a za kupce prvog stana.
Dobra saobraćajna povezanost sa svim delovima grada.
U blizini sva potrebna infrastruktura neophodna za udoban život.

Bez provizije za kupce
Agent: Snježana Brašnjović br. licence 2704
“Art nekretnine“ d.o.o. Beograd. Reg. br.339
.
Kontakt: 011 412 83 75
Adresa Vojvode Stepe
Klikni da pozoveš ili pošalješ poruku
Kontakt telefon
011 412 83 75
Prijavi grešku u oglasu
Zakaži gledanje stana
Zakaži gledanje stana
Pitaj oglašivača
Selektuj šta te interesuje:
Pošalji pitanje

Podeli stan sa prijateljima
Kopiraj link

Kontaktiraj oglašivača


Slični oglasi: