Oglas BeogradskiStanovi-13876

Miloša Bogićevića, Dvoiposoban stan na prodaju, 65m2, 153.700€

Šifra oglasa: BeogradskiStanovi-13876
Beograd, Rakovica - Miloša Bogićevića
Novogradnja, moderan stan ID#BeogradskiStanovi-13876

153.700 €

2.364,62 €/m2

Klikni da pozoveš ili pošalješ poruku
Kontakt telefon
011 412 83 75

Detalji oglasa:
Cena:
Kvadratura:
Tip objekta:
Stanje objekta:
Struktura:
Sprat:
Način grejanja:
Uknjiženost:
Dodatno:
153.700 €
65 m2
Stan
Izvorno
2.5
3/5
Etažno
Uknjiženo
Parking, lift
Oglas ažuriran: 12.02.2026 (10:54)
Oglas proveren: 15.02.2026 (04:25)

Opis oglasa:
Šifra oglasa:
BeogradskiStanovi-13876
Kontakt: 011 412 83 75
Novogradnja – moderan stan – useljivo u aprilu.

Prodaja stana sa parking mestom.

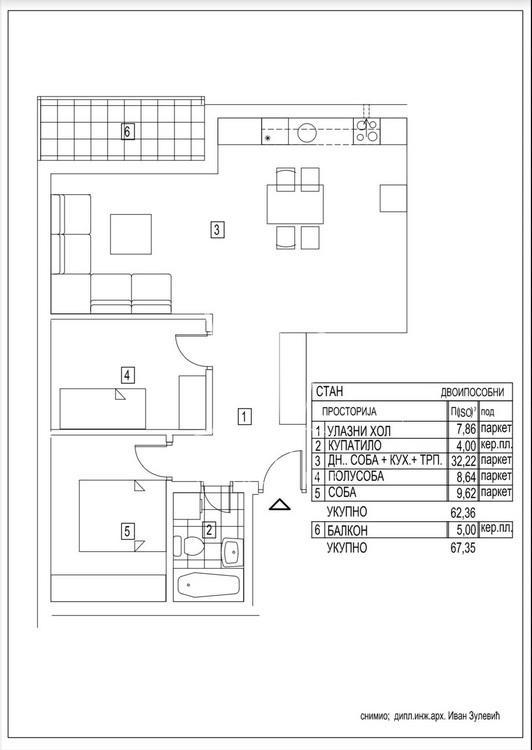
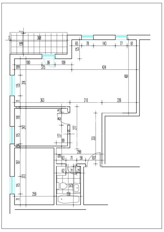
Na prodaju dvoiposoban stan (adaptibilan u troiposoban) u ulici Miloša Bogićevića, površine 64,54m2, smešten na 3. spratu uredne stambene zgrade.
Stan odlikuje funkcionalan i praktičan raspored koji pruža maksimalnu iskoristivost prostora i udoban porodični život.

Struktura stana:
Prostrana i svetla dnevna soba, odvojena kuhinja sa trpezarijom, dve spavaće sobe, kupatilo i hodnik, terasa.

Lokacija:
Kneževac je mirno i porodično naselje sa blizinom škole, vrtića, prodavnica, javnog prevoza i zelenih površina, odlično povezano sa ostatkom grada.
Stan sa odličnim rasporedom, na lokaciji gde se udobno živi i lako izdaje.

Agencijska provizija iznosi 2%.
Agent: Biljana Jovanović, br. licence: 5659
“Art nekretnine“ d.o.o. Beograd
Reg. br. 339

BJ08 .
Kontakt: 011 412 83 75
Adresa Miloša Bogićevića
Klikni da pozoveš ili pošalješ poruku
Kontakt telefon
011 412 83 75
Prijavi grešku u oglasu
Zakaži gledanje stana
Zakaži gledanje stana
Pitaj oglašivača
Selektuj šta te interesuje:
Pošalji pitanje

Podeli stan sa prijateljima
Kopiraj link

Kontaktiraj oglašivača


Slični oglasi: