Put za Ovču, Dvoiposoban stan na prodaju, 51m2, 107.000€

Šifra oglasa: BeogradskiStanovi-4524
Beograd, Palilula, Borča - Put za Ovču
PALILULA BORČA 51m2 , (T) ,107000e

107.000 €

2.098,04 €/m2

Klikni da pozoveš ili pošalješ poruku
Kontakt telefon
011 412 71 91

Kliknite i ostavite kontakt kako biste saznali kako ovaj stan možete kupiti uz pomoć stambenog kredita:
Detalji oglasa:
Cena:
Kvadratura:
Tip objekta:
Stanje objekta:
Struktura:
Sprat:
Način grejanja:
Uknjiženost:
107.000 €
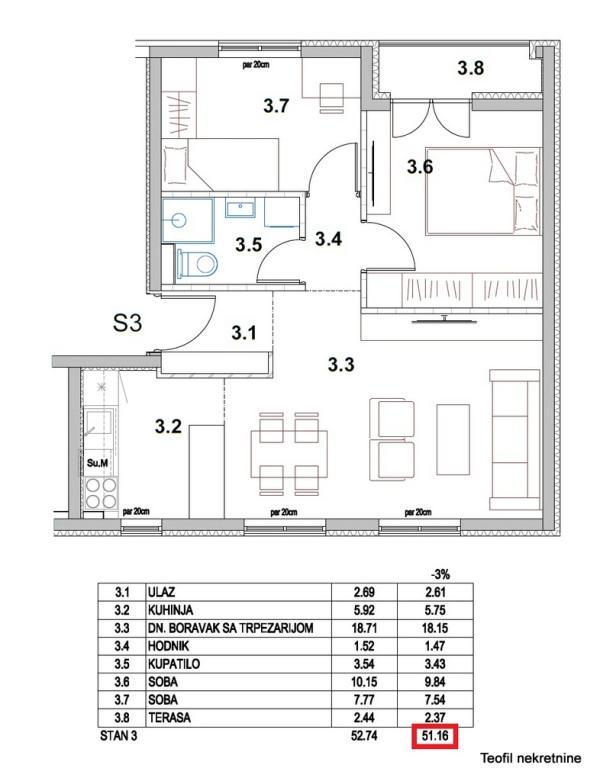
51 m2
Stan
Izvorno
2.5
1/2
-
Nije uknjiženo
Oglas ažuriran: 30.01.2026 (00:00)
Oglas proveren: 05.03.2026 (04:25)

Opis oglasa:
Šifra oglasa:
BeogradskiStanovi-4524
Kontakt: 011 412 71 91
Na odličnoj lokaciji Borče u novoj dvospratnoj zgradi sa interfonom, video nadzor... nudimo vam veliki izbor različitih struktura i kvadratura stanova useljive krajem decembra. Zgrade u blizini svih potrebnih objekata infrastrukture.
U ponudi imamo dvosobne, dvoiposobne, troiposoban i četvorosobne stanove (od 45,74m2-104,44m2), kao i poslovni prostor (48,28m2). Uz svaki kupljeni stan ide pripadajuće parking mesto.
Stanovi su pozicionirani tako da imaju višestranu orjentaciju. Podno grejanje.
Na podovima je troslojni Tarkett parket, PVC tamna stolarija s roletnama, prvoklasna keramika, odlična izolacija između soba i stanova, sigurnosna ulazna vrata, unutrašnja elegantna vrata od farbanog medijapana i materijali koji omogućavaju da stan leti bude hladan, a zimi topao. Sigurnosne kamere, Demit fasada 10cm.
Cene su izražene sa PDV-om (mogućnost povraćaja).
Uredna dokumentacija.
Agencijska provizija 2% gr.dozvola Kristijan 1/2 Put za Ovču -imamo slicne NEKRETNINE BEOGRAD
Kontakt: 011 412 71 91
Adresa Put za Ovču
Klikni da pozoveš ili pošalješ poruku
Kontakt telefon
011 412 71 91
Prijavi grešku u oglasu
Zakaži gledanje stana
Zakaži gledanje stana
Pitaj oglašivača
Selektuj šta te interesuje:
Pošalji pitanje

Podeli stan sa prijateljima
Kopiraj link

Kontaktiraj oglašivača


Slični oglasi: