Gospodar Jevremova, Jednosoban stan na prodaju, 37m2, 240.000€

Šifra oglasa: BeogradskiStanovi-14146
Beograd, Stari grad, Gornji Dorćol - Gospodar Jevremova
Dorćol, salonac, mereno 40m2 ID#BeogradskiStanovi-14146

240.000 €

6.486,49 €/m2

Klikni da pozoveš ili pošalješ poruku
Kontakt telefon
011 412 83 75

Detalji oglasa:
Cena:
Kvadratura:
Tip objekta:
Stanje objekta:
Struktura:
Sprat:
Način grejanja:
Uknjiženost:
240.000 €
37 m2
Stan
Renovirano
1.0
2/4
Električno
Uknjiženo
Oglas ažuriran: 23.02.2026 (19:34)
Oglas proveren: 04.03.2026 (04:25)

Opis oglasa:
Šifra oglasa:
BeogradskiStanovi-14146
Kontakt: 011 412 83 75
Uknjižen, 1.0-soban, 2/4 sprat, nema lift, Ta.

Lako adaptibilan u 1.5-osoban.
Salonska visina.

Uknjižen na 37m2, mereno 40m2.
Ulaz i fasada zgrade u korektnom stanju.

Nalazi se ispod Studentskog parka.

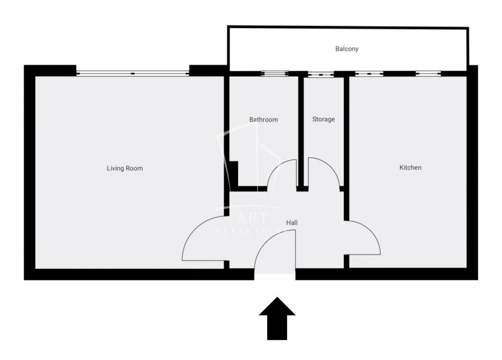
Prostorije: predsoblje, kupatilo, ostava, velika soba, kuhinja, balkon.

Agencijska provizija 2%.
Agent: Vladimir Jovanović br. licence 1773
"Art nekretnine" d.o.o. Beograd.
Reg. br. 339
.
Kontakt: 011 412 83 75
Adresa Gospodar Jevremova
Klikni da pozoveš ili pošalješ poruku
Kontakt telefon
011 412 83 75
Prijavi grešku u oglasu
Zakaži gledanje stana
Zakaži gledanje stana
Pitaj oglašivača
Selektuj šta te interesuje:
Pošalji pitanje

Podeli stan sa prijateljima
Kopiraj link

Kontaktiraj oglašivača


Slični oglasi: