Oglas BeogradskiStanovi-1170

Dvosoban stan na prodaju, 41m2, 167.630€

Šifra oglasa: BeogradskiStanovi-1170
Beograd, Voždovac
Voždovac,41.39m2,useljenje decembar 2026.

167.630 €

4.088,54 €/m2

Klikni da pozoveš ili pošalješ poruku
Kontakt telefon
011 412 83 76

Kliknite i ostavite kontakt kako biste saznali kako ovaj stan možete kupiti uz pomoć stambenog kredita:
Detalji oglasa:
Cena:
Kvadratura:
Tip objekta:
Stanje objekta:
Struktura:
Sprat:
Način grejanja:
Uknjiženost:
167.630 €
41 m2
Stan
Izvorno
2.0
4/4
Centralno
Nije uknjiženo
Oglas ažuriran: 05.03.2026 (11:47)
Oglas proveren: 30.04.2026 (16:25)

Opis oglasa:
Šifra oglasa:
BeogradskiStanovi-1170
Kontakt: 011 412 83 76
ID BeogradskiStanovi-1170

Kontakt: Za više informacija ili dogovor oko razgledanja, pozovite 0693322626

Bez agencijske provizije - direktna cena od investitora

Pravni nadzor - izrada i overa kupoprodajnog ugovora obezbeđena

Prodajemo stan u izgradnji renomiranog investitora, u neposrednoj blizini Gospodara Vučića.

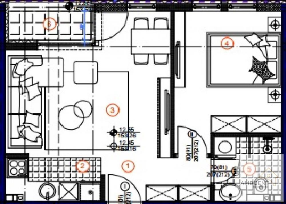
Stan se sastoji od: predsoblja, kuhinje, dnevnog boravka sa trpezarijom,sobe,kupatila i lođe.

Materijali i oprema su vrhunskog kvaliteta, poznatih proizvođača:

Prozori Profilati Italija
Roletne aluminijumske, termoizolacione, sa aluminijumskim vođicama i mogućnošću ugradnje komarnika
Elektropogon na taster
Boja aluminijuma RAL, drvo svetli hrast
Fasada sa kamenom vunom debljine 10 cm (Knauf Classic)
Keramika Marazzi

Zgrada se nalazi na izuzetnoj lokaciji, u blizini Osnovne škole Dositej Obradović, na svega 6 minuta vožnje od mega šoping centra.

Idealna nekretnina za udoban i komforan život u mirnom okruženju sa svim potrebnim sadržajima u blizini.

Cena je bez PDV-a pravo na provraćaj imaju kupci prvog stana.

Broj u registru posrednika: 1667
Kontakt: 011 412 83 76
Klikni da pozoveš ili pošalješ poruku
Kontakt telefon
011 412 83 76
Prijavi grešku u oglasu
Zakaži gledanje stana
Zakaži gledanje stana
Pitaj oglašivača
Selektuj šta te interesuje:
Pošalji pitanje

Podeli stan sa prijateljima
Kopiraj link

Kontaktiraj oglašivača


Slični oglasi: