Oglas BeogradskiStanovi-14373

Radoja Markovića, Jednoiposoban stan na prodaju, 37m2, 70.000€

Šifra oglasa: BeogradskiStanovi-14373
Beograd, Čukarica - Radoja Markovića
Nov stan+parking ID#BeogradskiStanovi-14373

70.000 €

1.891,89 €/m2

Klikni da pozoveš ili pošalješ poruku
Kontakt telefon
011 412 83 75

Detalji oglasa:
Cena:
Kvadratura:
Tip objekta:
Stanje objekta:
Struktura:
Sprat:
Način grejanja:
Uknjiženost:
70.000 €
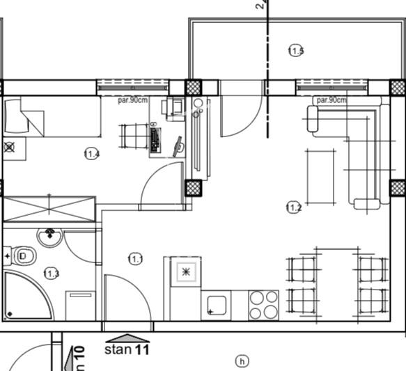
37 m2
Stan
Izvorno
1.5
1/2
Etažno
Nije uknjiženo
Oglas ažuriran: 11.03.2026 (19:32)
Oglas proveren: 13.03.2026 (08:25)

Opis oglasa:
Šifra oglasa:
BeogradskiStanovi-14373
Kontakt: 011 412 83 75
Predstavljamo moderan stambeni projekat sa samo 15 stanova, idealan za sve koji žele mir, kvalitet i privatnost. Svaki stan ima terasu, a zgrada je građena od pažljivo biranih materijala.
Oprema i kvalitet gradnje:
Španska keramika
Aluminijumska i PVC stolarija sa nemačkim profilima u antracit boji, električni podizači roletni
Višeslojni hrastov parket
Podno grejanje u stanovima, povezivanje preko WIFi
Sigurnosna ulazna vrata, sobna vrata od farbanog medijapana
Interfon i video nadzor
Dvostrani ulaz u zgradu (sa ulice + parking iza zgrade)
Fotografija prikazuje idejno rešenje fasade.
Parking mesto: 4.000 €
Odlična lokacija – svega 500 m od OŠ Vuk Karadžić, dok su teniski tereni na nekoliko koraka.
Planirano useljenje: jul 2026
Moguća kupovina putem stambenog kredita
Prva prezentacija stanova: 21.03.2026.
Zakažite svoj termin na vreme i obezbedite stan u novom, kvalitetnom objektu.
Agenc. provizija 2%
Agent: Milena Kalezić br. licence 1993
Art nekretnine d.o.o. Beograd. Reg. br.339
.
Kontakt: 011 412 83 75
Adresa Radoja Markovića
Klikni da pozoveš ili pošalješ poruku
Kontakt telefon
011 412 83 75
Prijavi grešku u oglasu
Zakaži gledanje stana
Zakaži gledanje stana
Pitaj oglašivača
Selektuj šta te interesuje:
Pošalji pitanje

Podeli stan sa prijateljima
Kopiraj link

Kontaktiraj oglašivača


Slični oglasi: