Oglas BeogradskiStanovi-14403

Dimitrija Tucovića, Dvosoban stan na prodaju, 51m2, 238.000€

Šifra oglasa: BeogradskiStanovi-14403
Beograd, Zvezdara - Dimitrija Tucovića
Nov stan, 2.0, u blizini Zire ID#BeogradskiStanovi-14403

238.000 €

4.666,67 €/m2

Klikni da pozoveš ili pošalješ poruku
Kontakt telefon
011 412 83 75

Detalji oglasa:
Cena:
Kvadratura:
Tip objekta:
Stanje objekta:
Struktura:
Sprat:
Način grejanja:
Uknjiženost:
Dodatno:
238.000 €
51 m2
Stan
Izvorno
2.0
4/4
Etažno
Nije uknjiženo
Garaža, lift
Oglas ažuriran: 14.03.2026 (17:15)
Oglas proveren: 30.04.2026 (04:25)

Opis oglasa:
Šifra oglasa:
BeogradskiStanovi-14403
Kontakt: 011 412 83 75
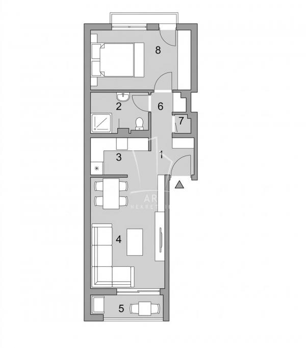
Nov dvosoban stan u objektu visoke klase u blizini Zire.

Sastoji se od dnevnog boravka sa trpezarijom, kuhinje, kupatila, spavaće sobe, vešernice i terase.
Sve u stanu je visokog kvaliteta, aluminijumska stolarija, roletne sa elektromotorima, prvoklasna keramika, grejanje na toplotne pumpe.

Mogućnost kupovine garažnog mesta po ceni od 18000+PDV.

Planirani rok završetka radova juli 2026.

Uredna dokumentacija.
Povrat PDV-a za kupce prvog stana.

Agencijska provizija 2%
Agent: Darko Slivar br. licence 4162
Art nekretnine d.o.o. Beograd.
Reg. br.339
.
Kontakt: 011 412 83 75
Adresa Dimitrija Tucovića
Klikni da pozoveš ili pošalješ poruku
Kontakt telefon
011 412 83 75
Prijavi grešku u oglasu
Zakaži gledanje stana
Zakaži gledanje stana
Pitaj oglašivača
Selektuj šta te interesuje:
Pošalji pitanje

Podeli stan sa prijateljima
Kopiraj link

Kontaktiraj oglašivača


Slični oglasi: