Trosoban stan na prodaju, 73m2, 210.000€

Šifra oglasa: BeogradskiStanovi-23182
Beograd, Zvezdara, Konjarnik
Zvezdara, Konjarnik - Deset avijatičara, 73m2

210.000 €

2.876,71 €/m2

Klikni da pozoveš ili pošalješ poruku
Kontakt telefon
Klikni na dugme da vidis broj
0653039439

Kliknite i ostavite kontakt kako biste saznali kako ovaj stan možete kupiti uz pomoć stambenog kredita:
Detalji oglasa:
Cena:
Kvadratura:
Tip objekta:
Stanje objekta:
Struktura:
Sprat:
Način grejanja:
Uknjiženost:
Dodatno:
210.000 €
73 m2
Stan
Izvorno
3.0
pr/4
Centralno
Uknjiženo
Parking, lift
Oglas ažuriran: 25.03.2026 (16:56)
Oglas proveren: 17.05.2026 (04:25)

Opis oglasa:
Šifra oglasa:
BeogradskiStanovi-23182
Zvezdara, Konjarnik - Deset avijatičara

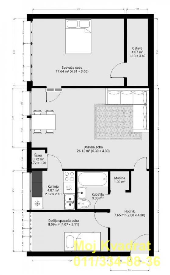
3.0, 73m2, PR/4, CG, lift, telefon, interfon, podrum, parking

U ponudi za prodaju trosoban stan na Konjarniku, u održavanoj zgradi sa urednim ulazom. Okrenut je ka parku i zelenilu.

Prostorije: dnevna soba, dve spavaće sobe, kuhinja, trpezarija, kupatilo. Lođa je adaptirana u trpezariju. Takođe, ima i pripadajući podrum.

Parket je kvalitetan, hrastov. Stolarija je delimično renovirana.

Uknjižen na 64m2 korisne i 68m2 građevinske površine. Mereno ima 73m2.

Agencijska provizija 2%

Agent: Verica Ilić 063/254-891 (licenca br.1780)
Klikni da pozoveš ili pošalješ poruku
Kontakt telefon
Klikni na dugme da vidis broj
0653039439
Prijavi grešku u oglasu
Zakaži gledanje stana
Zakaži gledanje stana
Pitaj oglašivača
Selektuj šta te interesuje:
Pošalji pitanje

Podeli stan sa prijateljima
Kopiraj link

Kontaktiraj oglašivača
Vaš Kvadrat DOO - profilna slika
Klikni na *** za prikaz broja telefona
0653039439

Klikni na *** za prikaz broja telefona
0113348871

Klikni na *** za prikaz broja telefona
0113348836

Klikni na *** za prikaz broja telefona
0116305219

Broj u registru: 167


Slični oglasi: