Oglas BeogradskiStanovi-1338

Trosoban stan na prodaju, 85m2, 280.797€

Šifra oglasa: BeogradskiStanovi-1338
Beograd
Na prodaju LUX stan novogradnje na Novom Beogradu, 85m2

280.797 €

3.303,49 €/m2

Klikni da pozoveš ili pošalješ poruku
Kontakt telefon
011 412 83 76

Kliknite i ostavite kontakt kako biste saznali kako ovaj stan možete kupiti uz pomoć stambenog kredita:
Detalji oglasa:
Cena:
Kvadratura:
Tip objekta:
Stanje objekta:
Struktura:
Sprat:
Način grejanja:
Uknjiženost:
Dodatno:
280.797 €
85 m2
Stan
Lux
3.0
4/4
Centralno
Nije uknjiženo
Terasa, lift
Oglas ažuriran: 28.03.2026 (20:34)
Oglas proveren: 23.05.2026 (12:25)

Opis oglasa:
Šifra oglasa:
BeogradskiStanovi-1338
Kontakt: 011 412 83 76
ID BeogradskiStanovi-1338

Kontakt: Za više informacija ili dogovor oko razgledanja, pozovite .

Bez agencijske provizije - direktna cena od investitora.

Pravni nadzor - izrada kupoprodajnog ugovora obezbeđena.

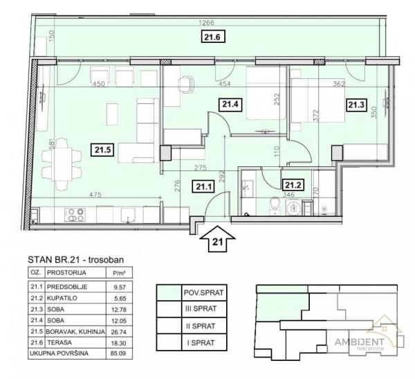
Trosoban stan površine 85.09 m2 na Novom Beogradu, u kvalitetnoj novogradnji koja ispunjava savremene standarde stanovanja. Odlikuje ga funkcionalan raspored i visok nivo završne obrade.

Stan se sastoji od predsoblja, dnevnog boravka sa kuhinjom, dve spavaće sobe, kupatila i terase.

Objekat je građen od termo bloka sa unapređenom izolacijom, dok su zidovi između stanova dodatno izolovani kombinacijom bloka, kamene vune i gipsa.

Fasada je urađena sa 10 cm kamene vune, što obezbeđuje odličnu energetsku efikasnost.

Podne obloge su od kvalitetnog Swiss Krono kompozitnog parketa, dok su u kupatilu i na terasi postavljene pločice renomiranih proizvođača, sa protivkliznom završnom obradom na terasi.

Grejanje je daljinsko, putem gradske toplane, sa aluminijumskim radijatorima, sušačem u kupatilu i individualnim kalorimetrom za obračun po potrošnji.

Stan je opremljen inverter klimom marke Midea u dnevnoj sobi. Sanitarije su vrhunskog kvaliteta, EU proizvodnje, brendova Grohe i Ideal Standard, sa modernim walk in tušem.

Elektro galanterija je u beloj boji, uz dodatnu rasvetu u kupatilu, na terasi i senzorsku rasvetu u zajedničkim prostorima.

Postoji mogućnost kupovine garažnog mesta na nivou minus dva po ceni od 20.000 evra plus PDV.

Cena je bez PDV-a - a pravo na povraćaj PDV-a imaju kupci prvog stana.

Broj u registru posrednika: 1667.
Kontakt: 011 412 83 76
Klikni da pozoveš ili pošalješ poruku
Kontakt telefon
011 412 83 76
Prijavi grešku u oglasu
Zakaži gledanje stana
Zakaži gledanje stana
Pitaj oglašivača
Selektuj šta te interesuje:
Pošalji pitanje

Podeli stan sa prijateljima
Kopiraj link

Kontaktiraj oglašivača


Slični oglasi: