Jovana Ćirilova, Trosoban stan na prodaju, 66m2, 266.000€

Šifra oglasa: BeogradskiStanovi-2696
Beograd, Vračar, Vukov spomenik - Jovana Ćirilova
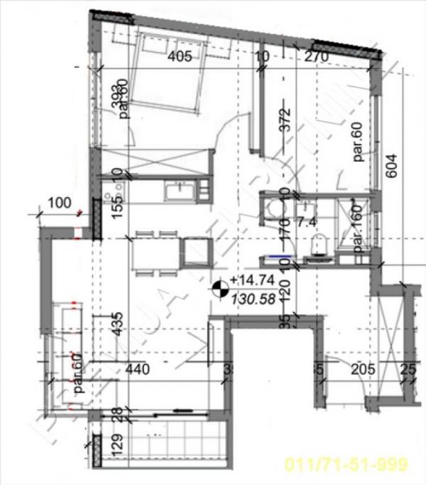
3.0, Slavujev venac, Jovana Ćirilova, 66,5m2

266.000 €

4.030,30 €/m2

Klikni da pozoveš ili pošalješ poruku
Kontakt telefon
Klikni na dugme da vidis broj
0117151999

Kliknite i ostavite kontakt kako biste saznali kako ovaj stan možete kupiti uz pomoć stambenog kredita:
Detalji oglasa:
Cena:
Kvadratura:
Tip objekta:
Stanje objekta:
Struktura:
Sprat:
Način grejanja:
Uknjiženost:
Dodatno:
266.000 €
66 m2
Stan
Lux
3.0
3/4
-
Nije uknjiženo
Terasa, lift
Oglas ažuriran: 03.04.2026 (14:27)
Oglas proveren: 20.05.2026 (08:25)

Opis oglasa:
Šifra oglasa:
BeogradskiStanovi-2696
3.0, Slavujev venac, 66,5m2, LUX, 3/4, podno grejanje, terasa, lift, trostrano orijentisan.
Gradnja visokog kvaliteta, sa po dva stana na spratu, funkcionalan raspored, prostrane prostorije, podno grejanje, aluminijumska stolarija, blindirana vrata, keramika prve klase. Ventilirajuća fasada.
Termo i zvučna izolacija - kamena vuna/stiropor, podno grejanje etažno, svako svoj kotao - individualno podešavanje. Klima. Alu stolarija, blind vrata visokog kvaliteta keramika, kupatilska oprema - Eurodom, podne obloge, lift.
Odličan dizajn enterijera zgrade, granitna stepeništa, ulaz, prirodno provetravanje, osvetljenje komunikacija stepeništa, stepenišno svetlo senzor.
Cena sa obračunatim PDV-om ukupno 4.000 eur/m2. Povraćaj PDV-a za kupce prvog stana.
Završetak gradnje decembar 2026. godine.
Građevinska dozvola.
Provizija 2%.
Zorana Petrović
063/18-11-002
Adresa Jovana Ćirilova
Klikni da pozoveš ili pošalješ poruku
Kontakt telefon
Klikni na dugme da vidis broj
0117151999
Prijavi grešku u oglasu
Zakaži gledanje stana
Zakaži gledanje stana
Pitaj oglašivača
Selektuj šta te interesuje:
Pošalji pitanje

Podeli stan sa prijateljima
Kopiraj link

Kontaktiraj oglašivača
Premija nekretnine - profilna slika
Klikni na *** za prikaz broja telefona
0117151999

Broj u registru: 831


Slični oglasi: