Oglas BeogradskiStanovi-272252

Hercegovačka , Dvosoban stan na prodaju, 71m2, 425.000€

Šifra oglasa: BeogradskiStanovi-272252
Beograd, Savski venac - Hercegovačka
Stan na prodaju BW Perla, Beograd na vodi,71m2

425.000 €

5.985,92 €/m2

Klikni da pozoveš ili pošalješ poruku
Kontakt telefon
011 413 93 04

Kliknite i ostavite kontakt kako biste saznali kako ovaj stan možete kupiti uz pomoć stambenog kredita:
Detalji oglasa:
Cena:
Kvadratura:
Tip objekta:
Stanje objekta:
Struktura:
Sprat:
Način grejanja:
Uknjiženost:
Dodatno:
425.000 €
71 m2
Stan
Izvorno
2.0
3/20
Centralno
Nije uknjiženo
Terasa, lift
Oglas ažuriran: 17.04.2026 (13:18)
Oglas proveren: 20.04.2026 (16:35)

Opis oglasa:
Šifra oglasa:
BeogradskiStanovi-272252
Kontakt: 011 413 93 04
Prodajemo stan na jednoj od najprestižnijih adresa u Beogradu na vodi, u zgradi BW Perla, prepoznatljivoj po elegantnoj fasadi i izuzetnoj lokaciji uz reku i Sava Promenadu.

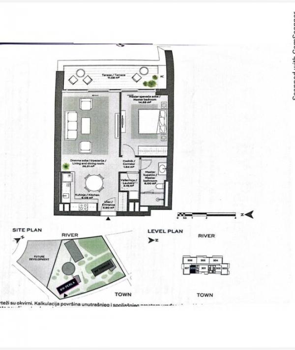
Pored vrhunske pozicije, zgrada BW Perla poseduje wellness centar, bazen i teretanu namenjene isključivo stanarima, čime se obezbeđuje visok nivo komfora i privatnosti. Stan se nalazi na 3. spratu, orijentisan prema gradskoj panorami. Sastoji se od ulaza, dnevnog boravka sa kuhinjom i trpezarijom, spavaće sobe, kupatila, vešernice i prostrane terase.

Zahvaljujući strukturi i lokaciji, stan predstavlja dobru opciju kako za život, tako i za investiciju, za dugoročno ili kratkoročno izdavanje. U neposrednom okruženju nalaze se svi sadržaji neophodni za savremen život, buduća internacionalna škola, TC Galerija, vrtići, prodavnice, šetalište, kao i bogata gastronomska i kulturna ponuda.

Ukupna površina stana iznosi 70.5m2 (59.5m2 unutrašnje površine+11m2 terasa). Useljenje i tehnički prijem očekuju se u narednim mesecima, a stan je moguće posetiti već sada. Mogućnost kupovine garažnog mesta po ceni od 45000e.

Stan se vodi na jednog vlasnika, bez tereta i zabeležbi.


Posrednička naknada se obračunava prema Opštim uslovima poslovanja agencije DIVIS NEKRETNINE DOO.
Kontakt: 011 413 93 04
Adresa Hercegovačka
Klikni da pozoveš ili pošalješ poruku
Kontakt telefon
011 413 93 04
Prijavi grešku u oglasu
Zakaži gledanje stana
Zakaži gledanje stana
Pitaj oglašivača
Selektuj šta te interesuje:
Pošalji pitanje

Podeli stan sa prijateljima
Kopiraj link

Kontaktiraj oglašivača


Slični oglasi: