Petosoban stan na prodaju, 220m2, 398.000€

Šifra oglasa: BeogradskiStanovi-21751
Beograd, Zvezdara, Đeram pijaca
Zvezdara, Đeram pijaca - Bulevar kralja Aleksandra, 220m2

398.000 €

1.809,09 €/m2

Klikni da pozoveš ili pošalješ poruku
Kontakt telefon
Klikni na dugme da vidis broj
0653039439

Kliknite i ostavite kontakt kako biste saznali kako ovaj stan možete kupiti uz pomoć stambenog kredita:
Detalji oglasa:
Cena:
Kvadratura:
Tip objekta:
Stanje objekta:
Struktura:
Sprat:
Način grejanja:
Uknjiženost:
Dodatno:
398.000 €
220 m2
Stan
Izvorno
5.0
6/7
Etažno
Uknjiženo
Lift
Oglas ažuriran: 11.10.2024 (18:44)
Oglas proveren: 08.11.2025 (20:25)

Opis oglasa:
Šifra oglasa:
BeogradskiStanovi-21751
Zvezdara, Đeram pijaca - Bulevar kralja Aleksandra

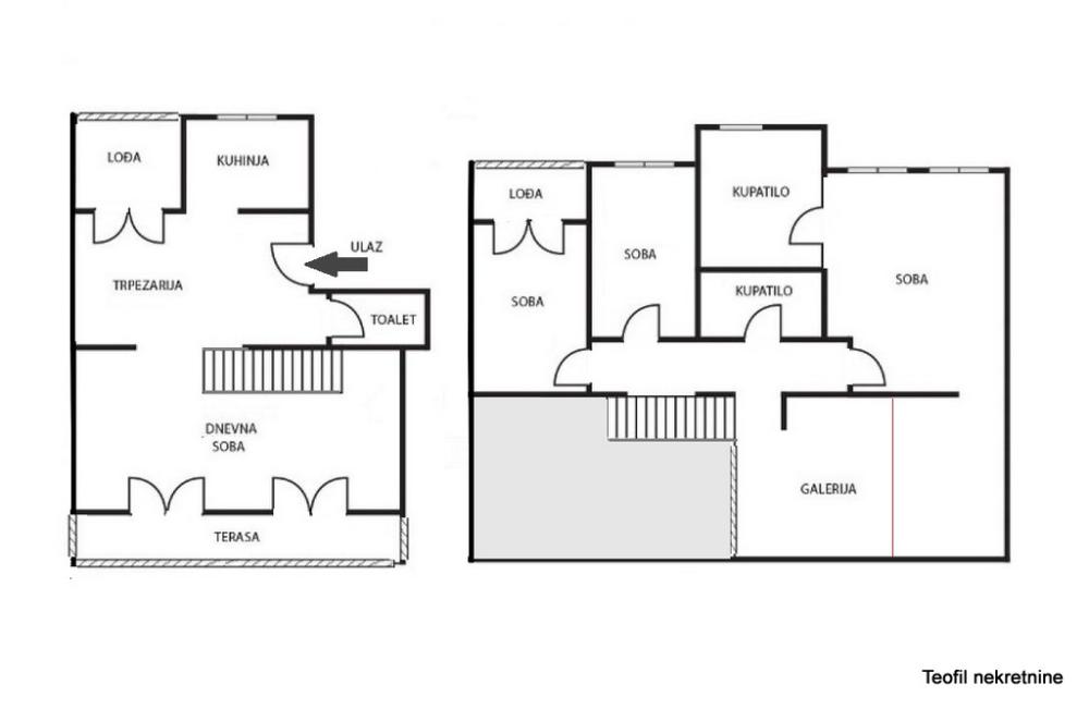
5.0, 220m2 (dve lođe 14m2), 6/7, EG, lift, telefon, interfon, podrum

Odličan, dvoetažni stan kod Đeram pijace, u najlepšem delu Bulevara kralja Aleksandra. Dvostrano je orijentisan (sever-jug) i funkcioniše kao dve zasebne stambene jedinice.

Prvi nivo: hodnik, dnevni boravak, kuhinja sa trpezarijom, spavaća soba, ostava, kupatilo i lođa.
Drug nivo: hodnik, dnevni boravak sa kuhinjom i trpezarijom, dve spavaće sobe, kupatilo i lođa.

Lift ide do petog sprata.

Uknjižen na 48m2, a mereno ima 220m2 koji su nastali adaptacijom dela krovne terase u stambeni prostor.

Agencijska provizija 2%.

Agent Jelena Ninković: 064/54-33-192 (licenca br. 702)
Klikni da pozoveš ili pošalješ poruku
Kontakt telefon
Klikni na dugme da vidis broj
0653039439
Prijavi grešku u oglasu
Zakaži gledanje stana
Zakaži gledanje stana
Pitaj oglašivača
Selektuj šta te interesuje:
Pošalji pitanje

Podeli stan sa prijateljima
Kopiraj link

Kontaktiraj oglašivača
Kvadrat nekretnine - profilna slika
Klikni na *** za prikaz broja telefona
0653039439

Klikni na *** za prikaz broja telefona
0113348871

Klikni na *** za prikaz broja telefona
0113348836

Klikni na *** za prikaz broja telefona
0116305219

Broj u registru: 167
Slični oglasi: