Trosoban stan na prodaju, 79m2, 226.769€

Šifra oglasa: BeogradskiStanovi-22392
Beograd, Zemun, Gornji grad
Zemun, Gornji grad - Cara Dušana, 79m2

226.769 €

2.870,49 €/m2

Klikni da pozoveš ili pošalješ poruku
Kontakt telefon
Klikni na dugme da vidis broj
0653039439

Kliknite i ostavite kontakt kako biste saznali kako ovaj stan možete kupiti uz pomoć stambenog kredita:
Detalji oglasa:
Cena:
Kvadratura:
Tip objekta:
Stanje objekta:
Struktura:
Sprat:
Način grejanja:
Uknjiženost:
Dodatno:
226.769 €
79 m2
Stan
Izvorno
3.0
4/4
Etažno
Nije uknjiženo
Terasa, garaža, parking, lift
Oglas ažuriran: 12.06.2025 (06:25)
Oglas proveren: 03.11.2025 (20:25)

Opis oglasa:
Šifra oglasa:
BeogradskiStanovi-22392
Zemun, Gornji grad - Cara Dušana

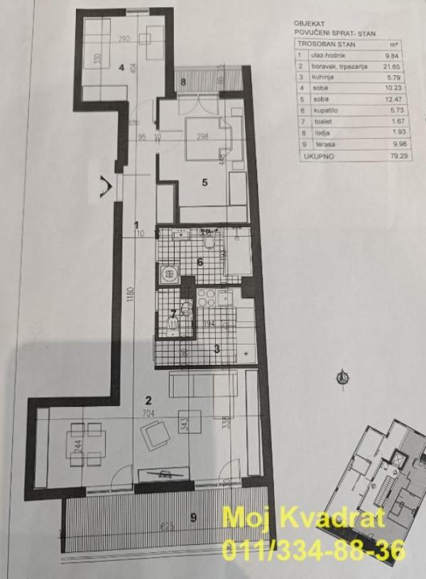
3.0, 79m2 (terasa i lođa 12m2), 4/4, EG, lift, telefon, interfon, parking, garaža

Na prodaju trosoban stan u izgradnji, na jednoj od najatraktivnijih lokacija u Zemunu.

Sastoji se od ulaznog hodnika, dnevne sobe sa trpezarijom, odvojene kuhinje, dve spavaće sobe, kupatila, toaleta, lođe i trerase.

Postoji mogućnost kupovine parking mesta po ceni od 25.000 evra.

Plani rok za useljenje je decembar 2025. godine.

U cenu stana je uračunat PDV.

Građevinska dozvola.

Agencijska provizija 2%.

Agent Lazar Karadžić: 065/36-02-507 (licenca br. 3343)
Klikni da pozoveš ili pošalješ poruku
Kontakt telefon
Klikni na dugme da vidis broj
0653039439
Prijavi grešku u oglasu
Zakaži gledanje stana
Zakaži gledanje stana
Pitaj oglašivača
Selektuj šta te interesuje:
Pošalji pitanje

Podeli stan sa prijateljima
Kopiraj link

Kontaktiraj oglašivača
Kvadrat nekretnine - profilna slika
Klikni na *** za prikaz broja telefona
0653039439

Klikni na *** za prikaz broja telefona
0113348871

Klikni na *** za prikaz broja telefona
0113348836

Klikni na *** za prikaz broja telefona
0116305219

Broj u registru: 167


Slični oglasi: