Oglas BeogradskiStanovi-12707

Generala Ždanova, Dvosoban stan na prodaju, 36m2, 144.900€

Šifra oglasa: BeogradskiStanovi-12707
Beograd, Novi Beograd - Generala Ždanova
Institut za majku i dete, mereno 40m2 ID#BeogradskiStanovi-12707

144.900 €

4.025,00 €/m2

Klikni da pozoveš ili pošalješ poruku
Kontakt telefon
011 412 83 75

Detalji oglasa:
Cena:
Kvadratura:
Tip objekta:
Stanje objekta:
Struktura:
Sprat:
Način grejanja:
Uknjiženost:
Dodatno:
144.900 €
36 m2
Stan
Izvorno
2.0
3/5
Etažno
Uknjiženo
Lift
Oglas ažuriran: 01.12.2025 (13:25)
Oglas proveren: 03.12.2025 (04:25)

Opis oglasa:
Šifra oglasa:
BeogradskiStanovi-12707
Kontakt: 011 412 83 75
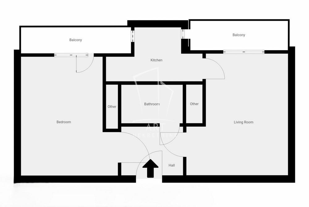
Uknjižen, 2.0, eg, 3/5, lift, dve terase.

Odlična lokacija. Na korak od svega, prva prodavnica ispred zgrade, odmah kod okretnice autobuske linije 16, vrlo dobro povezan sa ostatkom Novog Beograda i Zemunom.
Stan je okružen zelenilom, dvorišno orijentisan na trećem spratu u zgradi sa liftom. Vrlo funkcionalan stan sa odličnim rasporedom i prostranim sobama.
Stan ima dve terase koje nisu ušle u uknjiženu površinu.
Dnevni boravak ima svoju terasu, spavaća soba ima takođe svoju terasu.
Kompletno renoviranje kupatila je upravo završeno.

Za detaljnije informacije, budite slobodni da nas kontaktirate.

Agencijska provizija 2%
Agent: Milena Kalezić br. licence 1993
“Art nekretnine“ d.o.o. Beograd. Reg. br.339
.
Kontakt: 011 412 83 75
Adresa Generala Ždanova
Klikni da pozoveš ili pošalješ poruku
Kontakt telefon
011 412 83 75
Prijavi grešku u oglasu
Zakaži gledanje stana
Zakaži gledanje stana
Pitaj oglašivača
Selektuj šta te interesuje:
Pošalji pitanje

Podeli stan sa prijateljima
Kopiraj link

Kontaktiraj oglašivača


Slični oglasi:

Najtraženije lokacije: