Oglas BeogradskiStanovi-22936

Dvoiposoban stan na prodaju, 74m2, 210.000€

Šifra oglasa: BeogradskiStanovi-22936
Beograd, Čukarica
Čukarica, Čukarička padina - Strugarska, 74m2

210.000 €

2.837,84 €/m2

Klikni da pozoveš ili pošalješ poruku
Kontakt telefon
Klikni na dugme da vidis broj
0653039439

Kliknite i ostavite kontakt kako biste saznali kako ovaj stan možete kupiti uz pomoć stambenog kredita:
Detalji oglasa:
Cena:
Kvadratura:
Tip objekta:
Stanje objekta:
Struktura:
Sprat:
Način grejanja:
Uknjiženost:
Dodatno:
210.000 €
74 m2
Stan
Izvorno
2.5
3/7
Centralno
Uknjiženo
Lift
Oglas ažuriran: 22.12.2025 (17:33)
Oglas proveren: 22.01.2026 (20:25)

Opis oglasa:
Šifra oglasa:
BeogradskiStanovi-22936
Čukarica, Čukarička padina - Strugarska

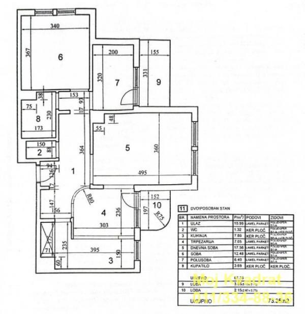
2.5, 74m2 (dve lođe 7m2), 3/7, CG, inverter klime, lift, interfon, podrum

U ponudi izvorno dvoiposoban stan na trećem spratu od ukupno sedam na odličnoj lokaciji u zgradi iz 1980-ih godina sa liftom, centralnim grejanjem i urednim ulazom. Stan je izuzetno svetao, dvostrano orijentisan i sa odličnim rasporedom prostorija.

Stan je korišćen kao kancelarijski prostor i adaptiran je tako da ima četiri odvojene kancelarije (prostorije), predsoblje, kuhinju, dve lođe, kupatilo i toalet.

Zamenjena je stolarija sa kvalitetnim PVC profilima (sa roletnama), kao i sigurnosna vrata. Lamelni parket je prekriven laminatom zbog lakšeg održavanja, ali može da se vrati u pređašnje stanje. Kupatilo i toalet su za sređivanje. Centralno grejanje je odjavljeno , s tim da su vertikale i dalje tople i stan se greje sa inverter klimama. Postoji mogućnost ponovnog priključenja na centralno grejanje.

Odličan za kancelarijski prostor ali i za stambeni (uz minimalne adaptacije).

Uknjižen na 74m2 građevinske i 67m2 korisne površine.

Agencijska provizija 2%

Agent: Jasmina Veljić 063/204-494 (licenca br.959)
Klikni da pozoveš ili pošalješ poruku
Kontakt telefon
Klikni na dugme da vidis broj
0653039439
Prijavi grešku u oglasu
Zakaži gledanje stana
Zakaži gledanje stana
Pitaj oglašivača
Selektuj šta te interesuje:
Pošalji pitanje

Podeli stan sa prijateljima
Kopiraj link

Kontaktiraj oglašivača
Vaš Kvadrat DOO - profilna slika
Klikni na *** za prikaz broja telefona
0653039439

Klikni na *** za prikaz broja telefona
0113348871

Klikni na *** za prikaz broja telefona
0113348836

Klikni na *** za prikaz broja telefona
0116305219

Broj u registru: 167


Slični oglasi: