Oglas BeogradskiStanovi-3602

Dvoiposoban stan na prodaju, 60m2, 163.790€

Šifra oglasa: BeogradskiStanovi-3602
Beograd, Čukarica
2.5 stan u luksuznoj novogradnji na Ceraku ID#BeogradskiStanovi-3602

163.790 €

2.729,83 €/m2

Klikni da pozoveš ili pošalješ poruku
Kontakt telefon
011 412 84 68

Kliknite i ostavite kontakt kako biste saznali kako ovaj stan možete kupiti uz pomoć stambenog kredita:
Detalji oglasa:
Cena:
Kvadratura:
Tip objekta:
Stanje objekta:
Struktura:
Sprat:
Način grejanja:
Uknjiženost:
Dodatno:
163.790 €
60 m2
Stan
Lux
2.5
1/5
Etažno
Nije uknjiženo
Lift
Oglas ažuriran: 02.02.2026 (13:58)
Oglas proveren: 03.02.2026 (16:25)

Opis oglasa:
Šifra oglasa:
BeogradskiStanovi-3602
Kontakt: 011 412 84 68
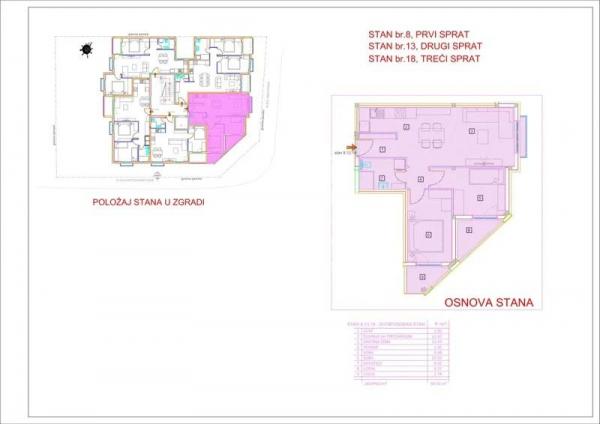
2.5, 59.56m2(dve lođe), EG, podno grejanje, inverter klima, lift, I/V, telefon, interfon. Građevinska dozvola.

Nova zgrada poznatog investitora. Više od 30 godina iskustva u gradnji stambenih objekata.
Gradnja po savremenim standardima, visok kvalitet materijala i opreme. Termoizolacija(kamena vuna9, PVC-stolarija, EG-podno grejanje(termostat u svakoj prostoriji), iverter klima.
U ovoj fazi gradnje investitor daje mogućnost kupcima da učestvuju u organizaciji prostora, prilagođavanje potrebama kupca.
Odlična lokacija, blizu glavnih ulica, Košutnjaka i svih institucija potrebnih za porodični život.

Zbog lokacije, kvaliteta gradnje, povoljno i kao investicija.
Mogućnost kupovine garažnog mesta.
Pouzdanost, lokacija i kvalitet.
Cena je izražena bez PDV-a

Rok završetka Mart 2027. godine.

Kontakt Agent Miroslav Broj u registru posrednika 1308 Agencijska provizija 2%
Kontakt: 011 412 84 68
Klikni da pozoveš ili pošalješ poruku
Kontakt telefon
011 412 84 68
Prijavi grešku u oglasu
Zakaži gledanje stana
Zakaži gledanje stana
Pitaj oglašivača
Selektuj šta te interesuje:
Pošalji pitanje

Podeli stan sa prijateljima
Kopiraj link

Kontaktiraj oglašivača


Slični oglasi: